Single Family
Do you need a HUGE HEATED SHOP, RV parking and two bedroom suite? Do you want a new furnace and updated A/C, hot water tank and windows? How about a meticulously maintained home with five bedrooms, two kitchens and a huge, private back yard backing on ALR....This property has ALL of that and more. Starting with the updated home, there are three bedrooms up, an updated kitchen / dining area open to the living room. Large windows brighten up this spacious area. The basement has a two bedroom suite with separate entrance and laundry room. The huge backyard is complemented with a pergola covered patio and loads of green space. The yard is fully fenced and irrigated. Loads of extra parking for your RV's. The oversized shop has a two piece bath, 220 service and is heated with an energy efficient on-demand in floor hot water gas heater. At almost 30' x 32', and 12' high, and with both a 10' x 10' door and an 8' x 8' door, there is room for all of your hobbies, projects, and toys. The home is set back from the road behind mature landscaping. This is a cream puff home paired with a dreamy big-kid playhouse! (id:6769)
Subarea
North Glenmore
Lot
0.28
Year Built
1966
Sewer
Septic tank
Parking Type
4
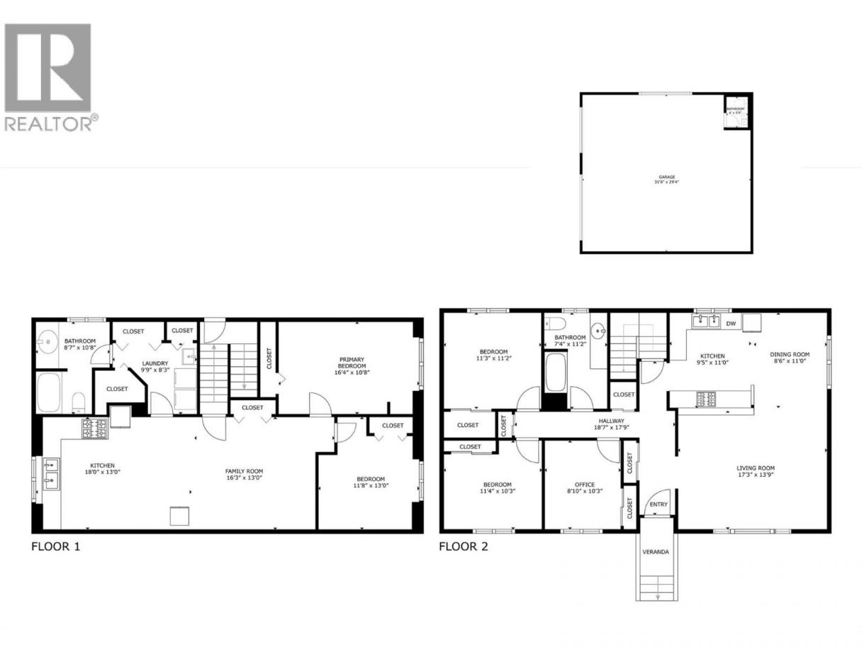
| Room | Floor | Dimension |
|---|---|---|
| Laundry room | Lower level | 9'9'' x 8'3'' |
| Partial bathroom | Main level | Measurements not available |
| Bedroom | Main level | 11'4'' x 10'3'' |
| Full bathroom | Main level | 7'4'' x 11'2'' |
| Primary Bedroom | Main level | 11'3'' x 11'2'' |
| Dining room | Main level | 8'6'' x 11'0'' |
| Living room | Main level | 17'3'' x 13'9'' |
| Kitchen | Main level | 9'5'' x 11'0'' |
| Bedroom | Additional Accommodation | 8'10'' x 10'3'' |
| Living room | Additional Accommodation | 16'3'' x 13'0'' |
| Kitchen | Additional Accommodation | 18'0'' x 13'0'' |
| Primary Bedroom | Additional Accommodation | 16'4'' x 10'8'' |
| Bedroom | Additional Accommodation | 11'8'' x 13' |
| Full bathroom | Additional Accommodation | 8'7'' x 10'8'' |
| Other | Secondary Dwelling Unit | 31'6'' x 29'4'' |
Maureen Yakimchuk
(250) 870-2510
Sotheby's International Realty Canada
(250) 469-9547
The property information on this website is derived from the Canadian Real Estate Association''s Data Distribution Facility (DDF®). DDF® references real estate listings held by various brokerage firms and franchisees. The accuracy of information is not guaranteed and should be independently verified. The trademarks REALTOR®, REALTORS® and the REALTOR® logo are controlled by The Canadian Real Estate Association (CREA) and identify real estate professionals who are members of CREA. The trademarks MLS®, Multiple Listing Service® and the associated logos are owned by CREA and identify the quality of services provided by real estate professionals who are members of CREA.
Listing data last updated date: 2026-04-28 04:01:31
