Single Family
OPEN HOUSE SATURDAY MARCH 21, 12:00-2:00 PM. Experience the quintessential Okanagan lifestyle in this stunning, newer walk-out rancher perfectly positioned within the highly sought-after La Casa Lakeside Resort. Designed for effortless comfort and versatility, the bright, open-concept layout features a main-floor primary suite and bathroom. The large kitchen, dining, and living areas are designed for effortless entertaining and flooded with natural light. Downstairs you will find a flexible den easily converted into a third bedroom or home office, along with another bedroom and bathroom. This home is thoughtfully equipped, boasting a single garage with an EV CHARGER and a home already pre-wired for a GENERATOR. New Home Warranty still applies. This is a great revenue property, or the perfect lakeside cottage for family, while the location offers some of the best lakeside amenities in the Okanagan; private beach access, 100-slip marina with boat launch, an Aqua Park for the kids, 2 pools and 3 luxury hot tubs, an 18-hole mini-golf course, tennis and pickleball courts, beach volleyball, a children's playground, miles of surrounding hiking, biking, and ATV trails, a dedicated dog beach, a general store, restaurant, and private security for the ultimate gated experience. With short-term rentals allowed, this property represents both a premier vacation retreat and a savvy investment opportunity in one of the region’s most vibrant lakeside communities. Quick possession possible. (id:6769)
Subarea
Fintry
Lot
0.06
Year Built
2022
Sewer
Municipal sewage system,Septic tank
Parking Type
1
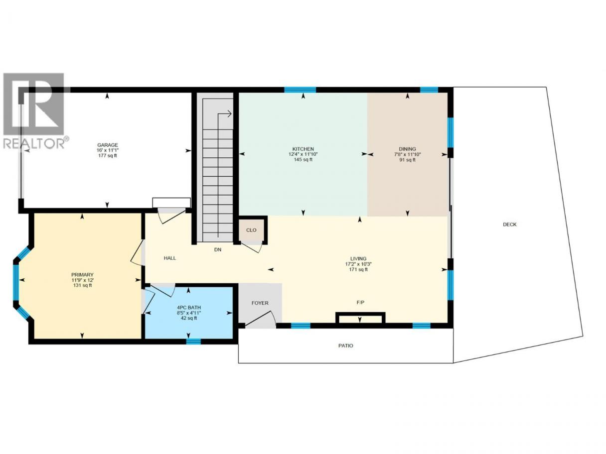
| Room | Floor | Dimension |
|---|---|---|
| Den | Lower level | 12' x 9' |
| Office | Lower level | 8' x 9' |
| Bedroom | Lower level | 10' x 11' |
| Full bathroom | Lower level | 9' x 5' |
| Full bathroom | Main level | 8' x 5' |
| Primary Bedroom | Main level | 12' x 12' |
| Living room | Main level | 17' x 10' |
| Kitchen | Main level | 12' x 12' |
Mark Lockwood
(250) 241-7599
Royal LePage Kelowna
(250) 768-2161
The property information on this website is derived from the Canadian Real Estate Association''s Data Distribution Facility (DDF®). DDF® references real estate listings held by various brokerage firms and franchisees. The accuracy of information is not guaranteed and should be independently verified. The trademarks REALTOR®, REALTORS® and the REALTOR® logo are controlled by The Canadian Real Estate Association (CREA) and identify real estate professionals who are members of CREA. The trademarks MLS®, Multiple Listing Service® and the associated logos are owned by CREA and identify the quality of services provided by real estate professionals who are members of CREA.
Listing data last updated date: 2026-05-17 03:30:24
