Single Family
Unbeatable Value in Lakeview Heights - Experience resort-style living in the heart of the Okanagan Wine Trail. This three bedroom, three bathroom sanctuary is an entertainer’s dream, featuring an expansive outdoor oasis complete with a sparkling pool, hot tub, rejuvenating sauna, and a custom fire pit. The professionally landscaped grounds offer ultimate serenity with a tranquil pond, meandering stream, and lush greenery. Inside, the open-concept floor plan is flooded with natural light, highlighting a chef-inspired kitchen and inviting living spaces. The primary retreat offers private outdoor access, while the additional bedrooms are perfect for family or a home office. Practicality meets luxury with two driveways, ample guest parking, and dedicated RV space. Bonus: Zoning allows for a carriage home! Located minutes from world-class wineries, hiking, and dining—this is the ultimate Okanagan lifestyle. (id:6769)
Subarea
Lakeview Heights
Lot
0.21
Year Built
1975
Sewer
Municipal sewage system
Flooring
Carpeted,Ceramic Tile,Hardwood
Parking Type
7
| Room | Floor | Dimension |
|---|---|---|
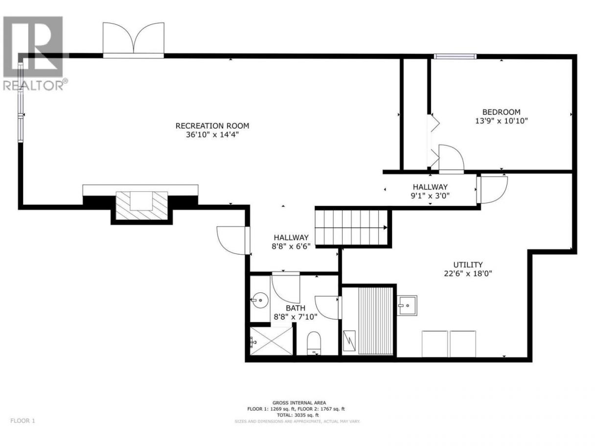
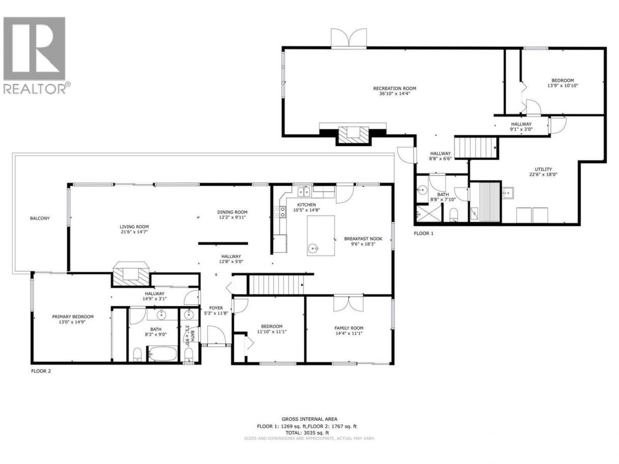
| Utility room | Basement | 22'6'' x 18' |
| 3pc Bathroom | Basement | 8'8'' x 7'10'' |
| Bedroom | Basement | 13'9'' x 10'10'' |
| Recreation room | Basement | 36'10'' x 14'4'' |
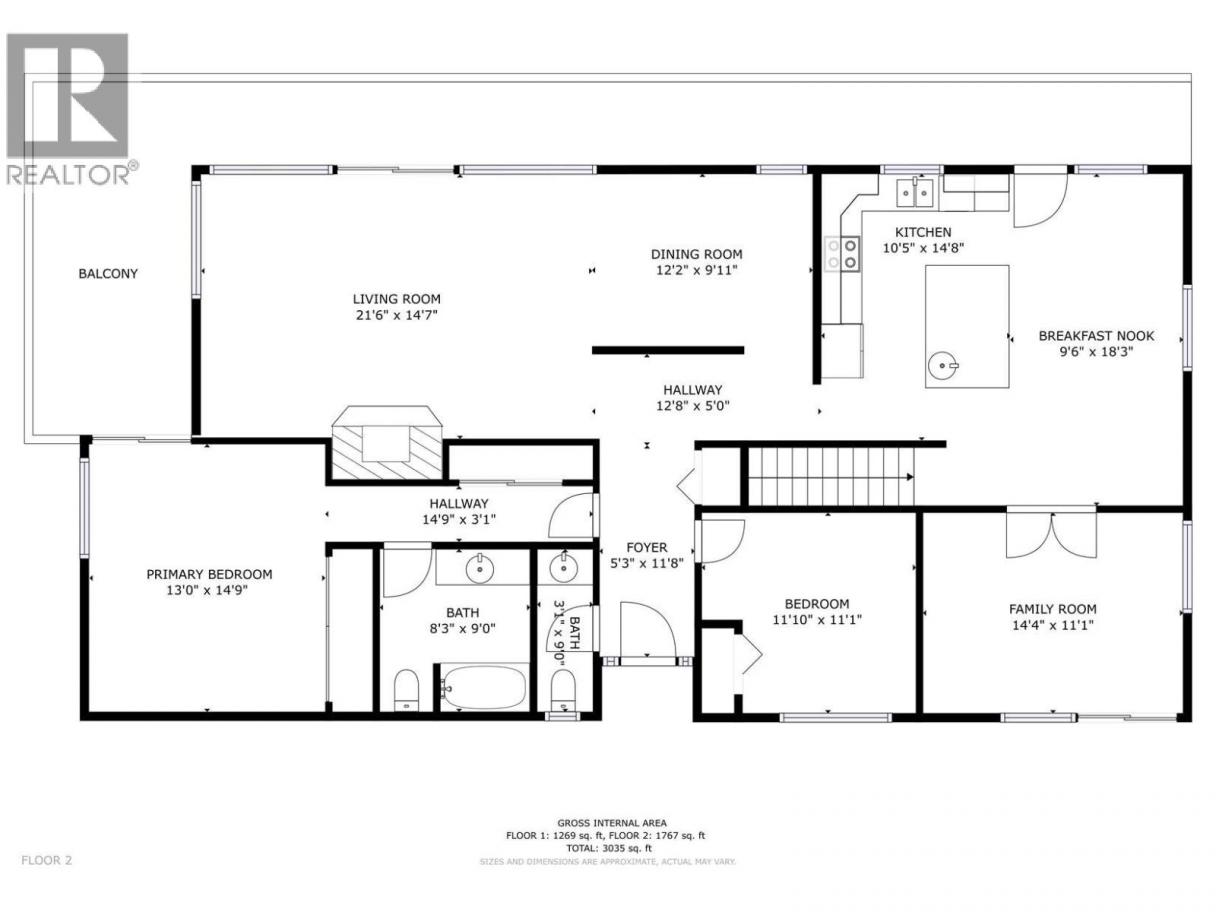
| Family room | Main level | 14'4'' x 11'1'' |
| Dining nook | Main level | 18'3'' x 9'6'' |
| Kitchen | Main level | 14'8'' x 10'5'' |
| Dining room | Main level | 12'2'' x 9'11'' |
| Living room | Main level | 21'6'' x 14'7'' |
| 4pc Ensuite bath | Main level | 9' x 8'3'' |
| Primary Bedroom | Main level | 14'9'' x 13' |
| Bedroom | Main level | 11'1'' x 11'10'' |
| 2pc Bathroom | Main level | 9' x 3' |
| Foyer | Main level | 11'8'' x 5'3'' |
Luke Cook
(250) 863-5539
Sotheby's International Realty Canada
(250) 469-9547
The property information on this website is derived from the Canadian Real Estate Association''s Data Distribution Facility (DDF®). DDF® references real estate listings held by various brokerage firms and franchisees. The accuracy of information is not guaranteed and should be independently verified. The trademarks REALTOR®, REALTORS® and the REALTOR® logo are controlled by The Canadian Real Estate Association (CREA) and identify real estate professionals who are members of CREA. The trademarks MLS®, Multiple Listing Service® and the associated logos are owned by CREA and identify the quality of services provided by real estate professionals who are members of CREA.
Listing data last updated date: 2026-03-16 01:09:25
