Single Family
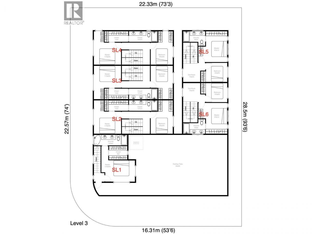
Offering strong rental income and future redevelopment potential, this property is an excellent investment opportunity. The land is already zoned to accommodate up to 6 townhouses and is located on a quiet street close to all that the South Pandosy neighbourhood has to offer—shopping, restaurants, beaches, schools, H2O Centre, public transit, and much more. Higher floors will enjoy beautiful pastoral views in almost every direction and will aid any future development in being a big success! Good rental revenue ensures that you can continue to rent out the property until the timing is right to redevelop or cash out. The increased Property Transfer Tax Exemption on new construction means that a buyer can now purchase an $850k townhouse with only $60k down if they are eligible for the GST and PTT exemptions. Furthermore, the latest change allowing high-ratio mortgages to amortize new construction over 30 years could result in said buyer’s mortgage payment being only $3.5k/mo (assuming a 3.09% interest rate at time of project completion). Sample floor plans have been provided to demonstrate what is possible, but the extensive street frontage of this lot provides considerable flexibility to realize your own development vision. (id:6769)
Subarea
Springfield/Spall
Lot
0.16
Year Built
1967
Sewer
Municipal sewage system
Flooring
Ceramic Tile,Laminate
Parking Type
5
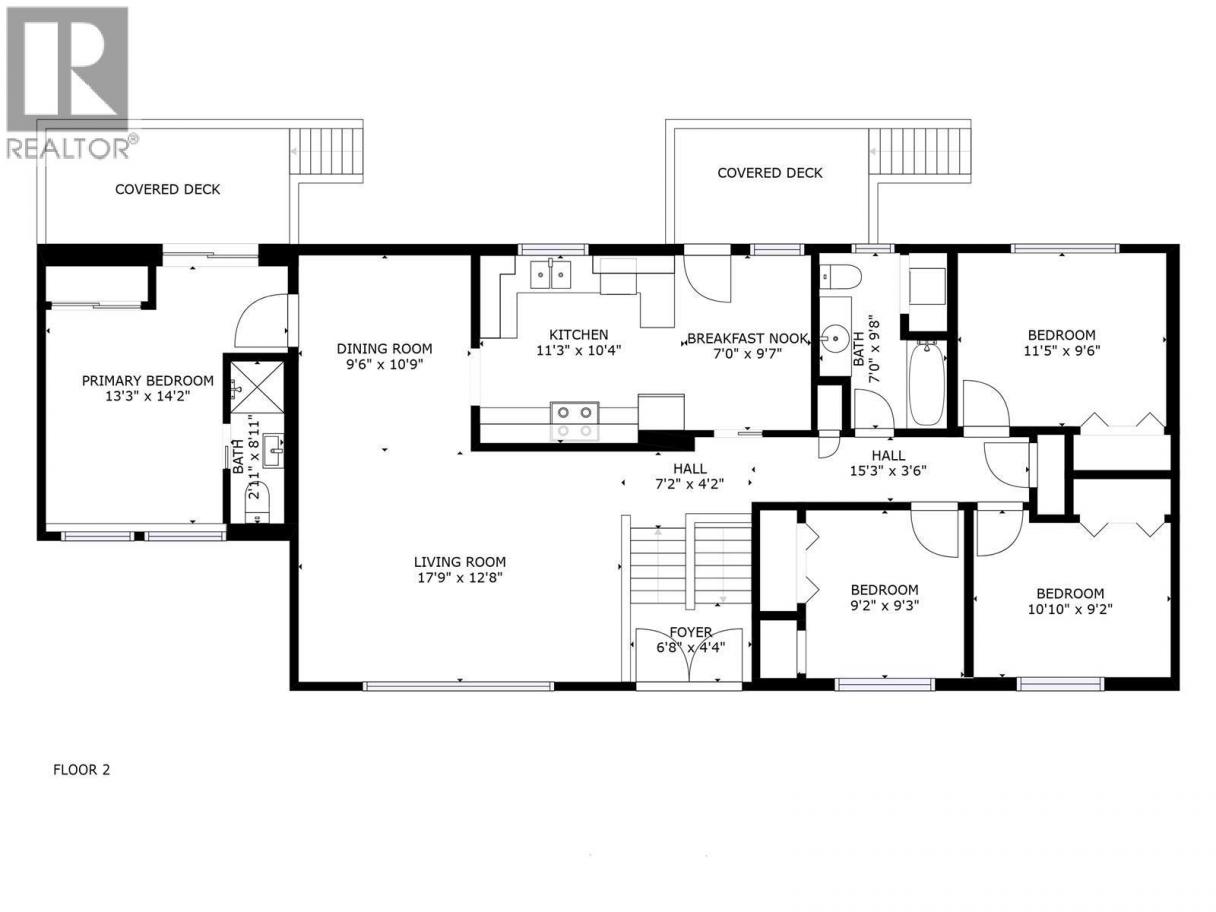
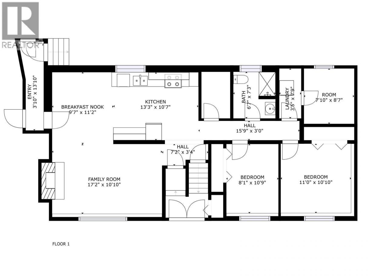
| Room | Floor | Dimension |
|---|---|---|
| Full bathroom | Basement | 6'7'' x 7'3'' |
| Bedroom | Basement | 8'1'' x 10'9'' |
| Bedroom | Basement | 11'0'' x 10'10'' |
| Kitchen | Basement | 13'3'' x 10'7'' |
| Dining room | Basement | 9'7'' x 11'2'' |
| Living room | Basement | 17'2'' x 10'10'' |
| Bedroom | Main level | 9'2'' x 9'3'' |
| Bedroom | Main level | 10'10'' x 9'2'' |
| Bedroom | Main level | 11'5'' x 9'6'' |
| Full bathroom | Main level | 7'0'' x 9'8'' |
| 3pc Ensuite bath | Main level | 3'0'' x 9'0'' |
| Primary Bedroom | Main level | 13'3'' x 14'2'' |
| Kitchen | Main level | 18'3'' x 10'4'' |
| Dining room | Main level | 9'6'' x 10'9'' |
| Living room | Main level | 17'9'' x 12'8'' |
Kattlin Stass
(250) 515-2649
Century 21 Assurance Realty Ltd
(250) 869-0101
The property information on this website is derived from the Canadian Real Estate Association''s Data Distribution Facility (DDF®). DDF® references real estate listings held by various brokerage firms and franchisees. The accuracy of information is not guaranteed and should be independently verified. The trademarks REALTOR®, REALTORS® and the REALTOR® logo are controlled by The Canadian Real Estate Association (CREA) and identify real estate professionals who are members of CREA. The trademarks MLS®, Multiple Listing Service® and the associated logos are owned by CREA and identify the quality of services provided by real estate professionals who are members of CREA.
Listing data last updated date: 2026-03-12 01:59:50
