Single Family
Welcome to this beautifully updated home in the desirable Shannon Lake community of Crystal Springs. This well-maintained home has seen numerous upgrades, offering comfort, style, and peace of mind for years to come. Major mechanical improvements include Poly-B plumbing removal and replacement with PEX, as was as the furnace (2015) and AC (2016). The home’s exterior has also been thoughtfully updated with a new roof (2024), new skirting (2023), and a new skylight (2024) that enhances natural light inside the home. Step inside to find new engineered hardwood flooring installed throughout most of the home in 2025, creating a modern and cohesive feel. The kitchen was refreshed in 2021 with updated countertops and a stylish backsplash, offering a functional and attractive space for cooking and entertaining. Enjoy outdoor living on the large front deck, now fully enclosed, providing additional versatile space that can be enjoyed in multiple seasons. With extensive updates already completed, this move-in-ready home offers excellent value and low-maintenance living in a welcoming neighbourhood close to Shannon Lake amenities, golf, parks, and shopping. Residents of Crystal Springs enjoy a welcoming, well-managed community with access to a clubhouse, guest suites, and beautifully landscaped grounds. (id:6769)
Subarea
Shannon Lake
Lot
0
Year Built
1996
Sewer
Municipal sewage system
Flooring
Hardwood,Vinyl
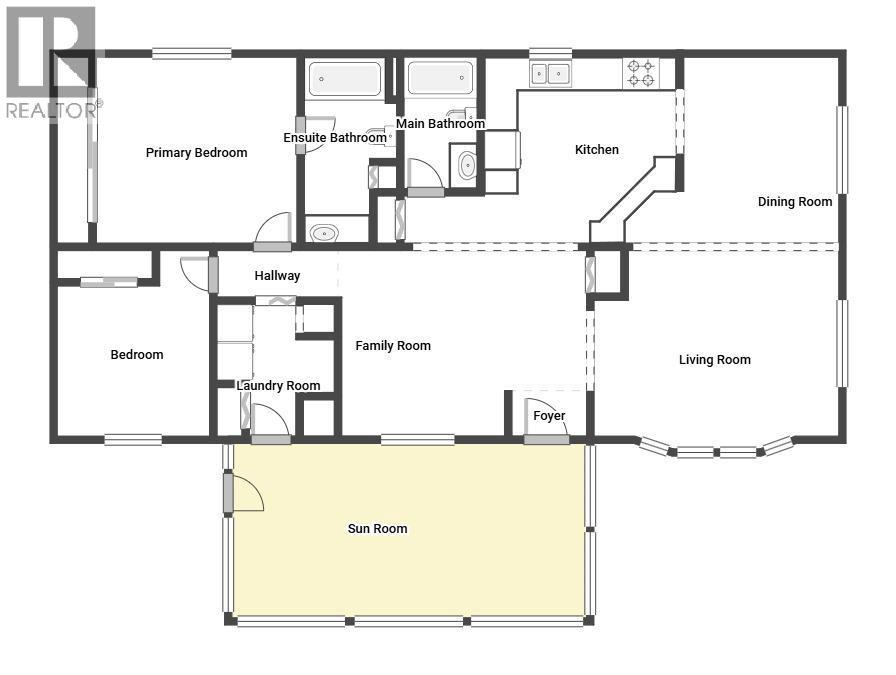
| Room | Floor | Dimension |
|---|---|---|
| Other | Main level | 19'8'' x 6'4'' |
| Sunroom | Main level | 23'5'' x 11'5'' |
| Laundry room | Main level | 8'11'' x 7'9'' |
| Office | Main level | 10'1'' x 9'1'' |
| 4pc Bathroom | Main level | 8'9'' x 5'0'' |
| Bedroom | Main level | 12'4'' x 10'0'' |
| 4pc Ensuite bath | Main level | 5'11'' x 12'4'' |
| Primary Bedroom | Main level | 13'2'' x 12'4'' |
| Dining room | Main level | 10'5'' x 9'1'' |
| Kitchen | Main level | 12'8'' x 12'4'' |
| Living room | Main level | 16'4'' x 12'5'' |
Brendan Stoneman
(250) 864-0808
RE/MAX Kelowna
(250) 717-5000
The property information on this website is derived from the Canadian Real Estate Association''s Data Distribution Facility (DDF®). DDF® references real estate listings held by various brokerage firms and franchisees. The accuracy of information is not guaranteed and should be independently verified. The trademarks REALTOR®, REALTORS® and the REALTOR® logo are controlled by The Canadian Real Estate Association (CREA) and identify real estate professionals who are members of CREA. The trademarks MLS®, Multiple Listing Service® and the associated logos are owned by CREA and identify the quality of services provided by real estate professionals who are members of CREA.
Listing data last updated date: 2026-03-18 02:28:27
