Single Family
Opportunities abound in this 5-bedroom, 4-bath walkout rancher! Not only does it have a legal suite, it also has an 'office' that is separate from the home and could be used as a home-based business. It also features a double attached garage for the main home, and a lower-level single attached garage for the one-bedroom suite - making it a really attractive option for potential tenants OR for multigenerational family living. The kitchen in this home has been beautifully renovated, with quartz countertops, high-grade appliances, and a water tap above the gas stove. And lots of windows to take in the gorgeous lake views, including a pass-through window from the kitchen to the deck! The kitchen also features a sit-up bar island, a coffee station, and a work desk area with views. Spacious vaulted living room with a gas fireplace and more lake views! The main home has 4 bedrooms & 3 baths (also renovated), and the newly designed legal suite has 1 bed, 1 bath, with a full kitchen, laundry, and lounging space. Lots of parking on two separate driveways on this property, including RV parking. A tiered, partially fenced yard, with lovely rock wall accents, allowing for your creative landscaping ideas to make it home! Lots of patio space - with separated space for a tenant, plus a rooftop patio above the single garage - a great place to tan and enjoy the lake and valley views! 2 blocks from elementary school and 2 blocks from extensive trail system. Priced below assessed value! (id:6769)
Subarea
West Kelowna Estates
Lot
0.28
Year Built
1976
Sewer
Municipal sewage system
Flooring
Carpeted,Tile,Vinyl
Parking Type
2
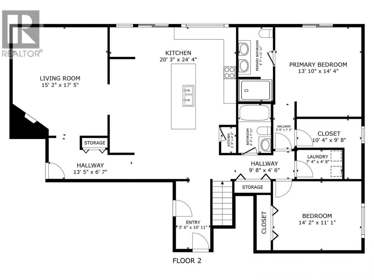
| Room | Floor | Dimension |
|---|---|---|
| Other | Basement | 22'8'' x 12'8'' |
| Utility room | Basement | 3'10'' x 7'7'' |
| Storage | Basement | 6' x 6'4'' |
| 3pc Bathroom | Basement | 7'7'' x 9'8'' |
| Bedroom | Basement | 9'7'' x 7'7'' |
| Bedroom | Basement | 10' x 10' |
| Family room | Basement | 15'6'' x 23'8'' |
| Other | Main level | 21' x 20' |
| Other | Main level | 9'8'' x 10'4'' |
| Foyer | Main level | 6'7'' x 13'6'' |
| Laundry room | Main level | 4'8'' x 7'4'' |
| 4pc Ensuite bath | Main level | 12' x 5'3'' |
| 4pc Bathroom | Main level | 7'11'' x 5'3'' |
| Bedroom | Main level | 11' x 14'2'' |
| Primary Bedroom | Main level | 14'4'' x 13'10'' |
| Kitchen | Main level | 20'3'' x 24'4'' |
| Living room | Main level | 17'5'' x 15'2'' |
| Full bathroom | Additional Accommodation | 12'9'' x 13'9'' |
| Bedroom | Additional Accommodation | 12'9'' x 10'2'' |
Anne Wolfe
(250) 878-1920
Century 21 Assurance Realty Ltd
(250) 869-0101
The property information on this website is derived from the Canadian Real Estate Association''s Data Distribution Facility (DDF®). DDF® references real estate listings held by various brokerage firms and franchisees. The accuracy of information is not guaranteed and should be independently verified. The trademarks REALTOR®, REALTORS® and the REALTOR® logo are controlled by The Canadian Real Estate Association (CREA) and identify real estate professionals who are members of CREA. The trademarks MLS®, Multiple Listing Service® and the associated logos are owned by CREA and identify the quality of services provided by real estate professionals who are members of CREA.
Listing data last updated date: 2026-03-05 03:53:21
