Agriculture
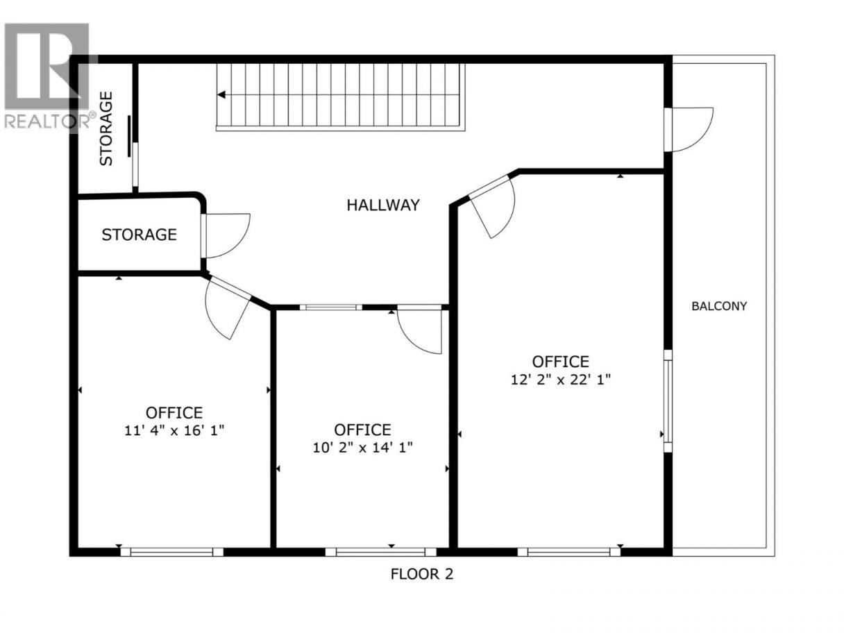
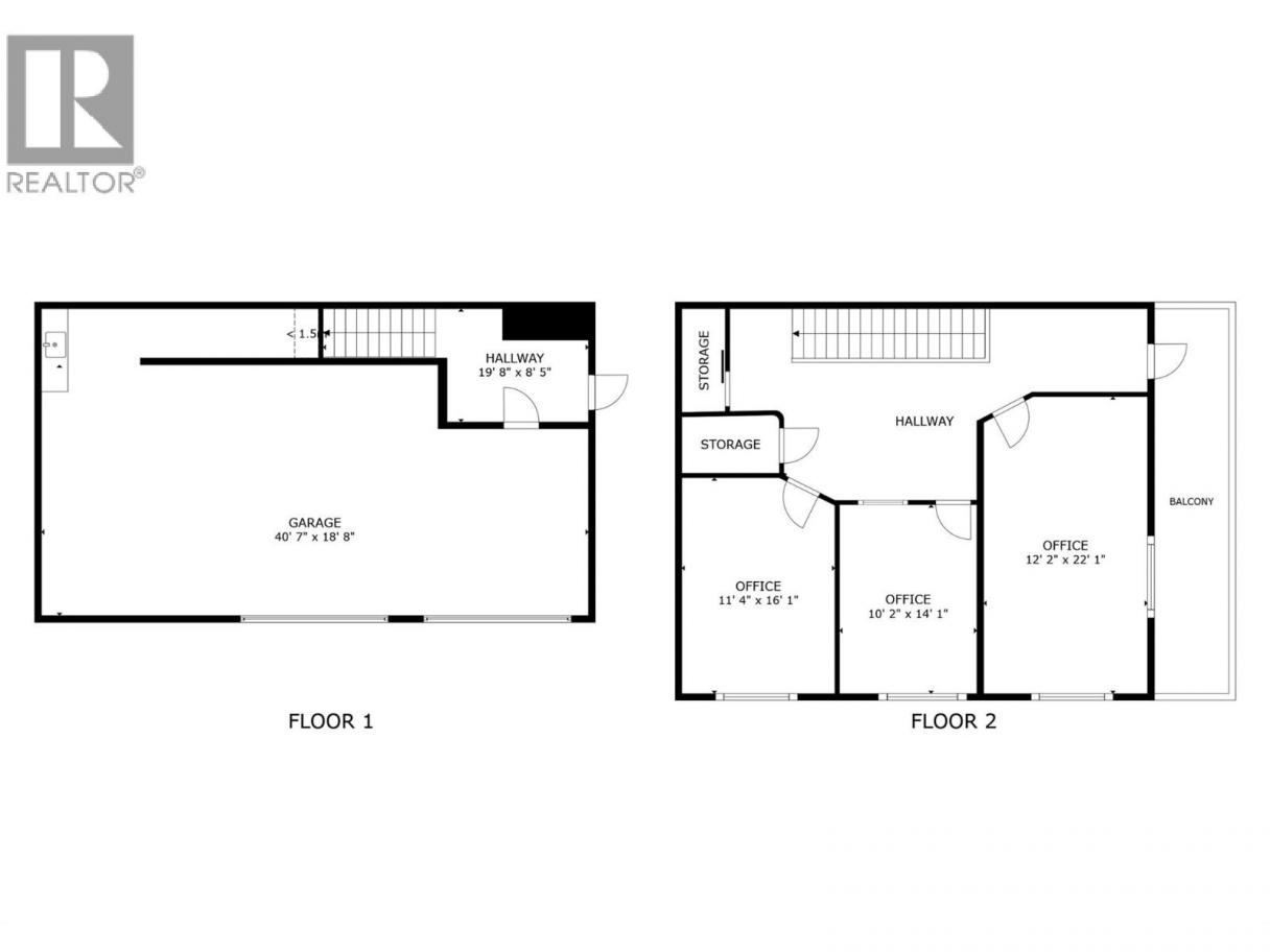
Rare turnkey ALR agribusiness opportunity on a high-visibility Rutland corridor. This 5.5-acre property offers a unique combination of producing orchard land, two residences, and extensive fruit packing and cold-storage infrastructure. Approximately 2.5 acres are planted in Gala apples, with three additional rows of mixed apple varieties, one row of grapes, and five rows of prune plum trees. The land is level, fully irrigated, fenced, and highly usable, with a secondary side-road entrance providing excellent truck access and operational efficiency. The property includes two detached 3-bedroom, 1-bathroom homes, ideal for owner occupancy, staff housing, or rental income. A major highlight is the 17,816 sq. ft. steel-frame processing and warehouse facility with 600-amp electrical service, offices, staff areas, mezzanine storage, two loading docks with bay doors, and ample on-site parking. The facility features six cold-storage rooms, including three controlled-atmosphere (CA) rooms with capacity for approximately 1,850 apple bins and three conventional coolers with capacity for approximately 1,200 bins, for a total storage capacity of approximately 3,000 bins. A fully equipped apple grading and packing line is included, along with approximately 2,000 wood apple bins and supporting equipment. Backing onto a residential neighbourhood, this is a rare opportunity to acquire a turnkey agricultural processing and storage operation in a prime Kelowna location. (id:6769)
Subarea
Rutland North
Lot
5.52
Year Built
2004
Sewer
Municipal sewage system
| Room | Floor | Dimension |
|---|---|---|
| 3pc Bathroom | Main level | Measurements not available |
| Bedroom | Main level | 9'10'' x 9'4'' |
| Bedroom | Main level | 9'4'' x 12'11'' |
| Primary Bedroom | Main level | 12'4'' x 11'10'' |
| Living room | Main level | 20' x 12'10'' |
| Dining room | Main level | 6'0'' x 12'11'' |
| Kitchen | Main level | 12'11'' x 9'6'' |
| Laundry room | Main level | 9'3'' x 8'11'' |
Raj Kandola
(250) 870-3294
Century 21 Assurance Realty Ltd
(250) 869-0101
The property information on this website is derived from the Canadian Real Estate Association''s Data Distribution Facility (DDF®). DDF® references real estate listings held by various brokerage firms and franchisees. The accuracy of information is not guaranteed and should be independently verified. The trademarks REALTOR®, REALTORS® and the REALTOR® logo are controlled by The Canadian Real Estate Association (CREA) and identify real estate professionals who are members of CREA. The trademarks MLS®, Multiple Listing Service® and the associated logos are owned by CREA and identify the quality of services provided by real estate professionals who are members of CREA.
Listing data last updated date: 2026-04-25 04:56:03
