Single Family
Welcome to 112-4630 Ponderosa Dr, a stunning 2-bedroom townhome in Chateaux on the Ridge, Peachland. This executive suite offers a perfect blend of luxury and practicality, ideal for those looking to downsize or for young professionals seeking a low maintenance lifestyle without compromising on quality or views, with the added benefit of convenient one-level living. Enjoy breathtaking 180-degree views of Okanagan Lake and the mountains from your private, oversized deck with glass railings. This home is part of a well-run strata community with low monthly fees that include hot water radiant heated floors and a gas fireplace, ensuring comfort and economy. The community boasts amenities such as a lounge area with an exercise room, billiards, a full kitchen for events, and a library. Outdoors, engage in activities with a putting green or explore nearby trails on Pincushion Mountain. Ample storage and covered parking are added conveniences. Located next to the future Pines at Ponderosa development, currently in negotiations, this area continues to show strong long-term potential. Just minutes from Okanagan Lake beaches and Peachland’s shopping areas, this property offers a tranquil yet connected lifestyle. Discover this serene oasis today and make it your new home. Schedule your showing today! (id:6769)
Subarea
Peachland
Lot
0
Year Built
1993
Sewer
Municipal sewage system
Flooring
Carpeted,Laminate,Tile
Parking Type
1
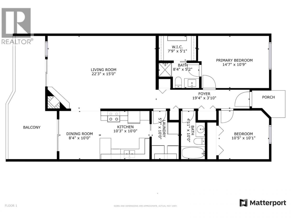
| Room | Floor | Dimension |
|---|---|---|
| Primary Bedroom | Main level | 14'7'' x 10'9'' |
| Other | Main level | 7'9'' x 5'1'' |
| 3pc Ensuite bath | Main level | 8'4'' x 5'2'' |
| Living room | Main level | 22'3'' x 15'0'' |
| Dining room | Main level | 8'4'' x 10'0'' |
| Kitchen | Main level | 10'3'' x 10'0'' |
| Laundry room | Main level | 5'7'' x 10'0'' |
| 3pc Bathroom | Main level | 4'11'' x 10'0'' |
| Bedroom | Main level | 10'5'' x 10'1'' |
| Foyer | Main level | 19'4'' x 3'10'' |
Nick Hazzi
(250) 878-6416
Vantage West Realty Inc.
(250) 717-3133
The property information on this website is derived from the Canadian Real Estate Association''s Data Distribution Facility (DDF®). DDF® references real estate listings held by various brokerage firms and franchisees. The accuracy of information is not guaranteed and should be independently verified. The trademarks REALTOR®, REALTORS® and the REALTOR® logo are controlled by The Canadian Real Estate Association (CREA) and identify real estate professionals who are members of CREA. The trademarks MLS®, Multiple Listing Service® and the associated logos are owned by CREA and identify the quality of services provided by real estate professionals who are members of CREA.
Listing data last updated date: 2026-02-24 01:50:53
