Single Family
Fantastic opportunity in the beautiful neighbourhood of Rutland South! Situated within easy walking distance to an elementary school, on a flat 0.20 acre lot, this 4 bedroom, 2 bathroom home offers exceptional flexibility with 3 bedrooms and 1 full bath on the main floor, an ideal layout for families, plus a bright 1 bedroom, 1 bathroom basement suite perfect for extended family or mortgage helper potential. The main level features an open kitchen with island, great for gathering and entertaining, flowing seamlessly to a large deck overlooking a giant flat yard and spacious property. With neighbouring properties recently assembled and currently being developed into townhomes, this property offers exciting future development and holding potential. Live in, rent out, or hold for future upside, the options here are strong. (id:6769)
Subarea
Rutland South
Lot
0.2
Year Built
1973
Sewer
Municipal sewage system
Flooring
Carpeted,Ceramic Tile,Hardwood,Laminate
Parking Type
3
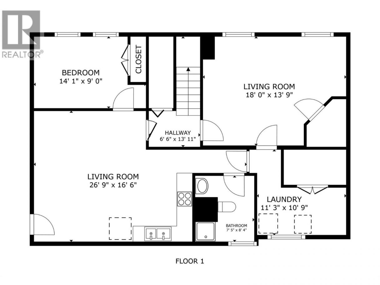
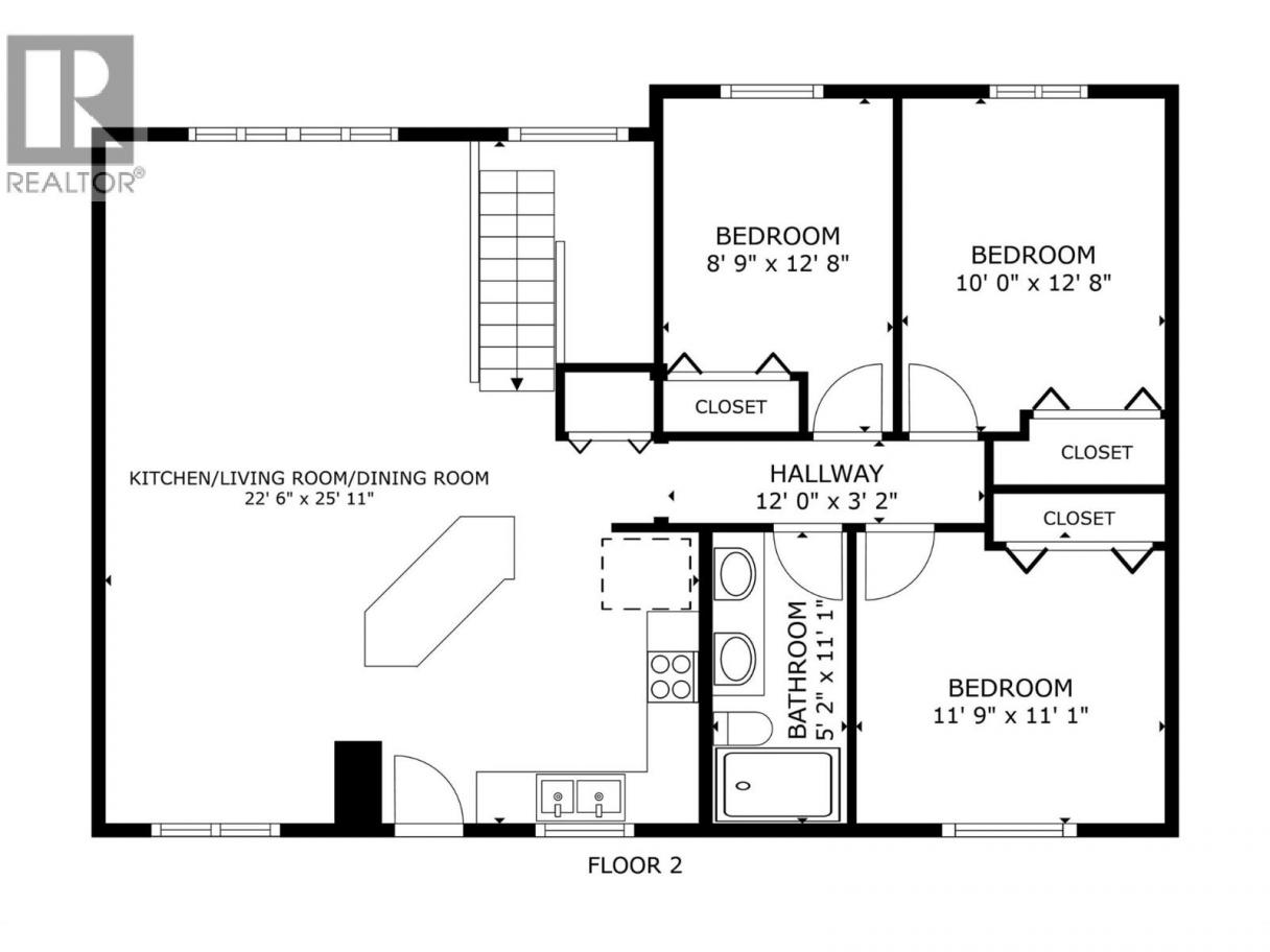
| Room | Floor | Dimension |
|---|---|---|
| Laundry room | Basement | 11'3'' x 10'9'' |
| Den | Basement | 18'1'' x 13'1'' |
| 5pc Bathroom | Main level | Measurements not available |
| Bedroom | Main level | 8'9'' x 12'8'' |
| Bedroom | Main level | 10'0'' x 12'8'' |
| Primary Bedroom | Main level | 11'9'' x 11'1'' |
| Foyer | Main level | 6'5'' x 4'1'' |
| Living room | Main level | 14'5'' x 13'9'' |
| Dining room | Main level | 11'4'' x 10'4'' |
| Kitchen | Main level | 11'3'' x 10'7'' |
| Kitchen | Additional Accommodation | 11'0'' x 8'0'' |
| Primary Bedroom | Additional Accommodation | 11'1'' x 8'0'' |
| Living room | Additional Accommodation | 15'11'' x 12'0'' |
| Full bathroom | Additional Accommodation | Measurements not available |
Matt Glen
(250) 870-0911
Century 21 Assurance Realty Ltd
(250) 869-0101
The property information on this website is derived from the Canadian Real Estate Association''s Data Distribution Facility (DDF®). DDF® references real estate listings held by various brokerage firms and franchisees. The accuracy of information is not guaranteed and should be independently verified. The trademarks REALTOR®, REALTORS® and the REALTOR® logo are controlled by The Canadian Real Estate Association (CREA) and identify real estate professionals who are members of CREA. The trademarks MLS®, Multiple Listing Service® and the associated logos are owned by CREA and identify the quality of services provided by real estate professionals who are members of CREA.
Listing data last updated date: 2026-03-28 03:26:49
