Single Family
This stunning custom-built home in the Glenmore area offers the ultimate in luxury living and investment potential. Featuring 6 bedrooms, 5 bathrooms, and over 5,800 sq ft of meticulously designed living space with 2 separate suites, this property is perfect for multi-generational living or income generation. The open-concept main floor features soaring 18-foot vaulted ceilings and walls of windows that flood the space with natural light while showcasing unobstructed panoramic views of the lake, mountains, and city. The gourmet kitchen is a chef's dream with stainless steel appliances including a 6-burner gas range, massive island with granite countertops, and elegant cherrywood cabinetry. Entertain in style in the dining and living areas featuring a cozy gas fireplace, or step out onto the massive 40-foot deck to soak up the sun and savor the views. The oversized primary bedroom features a walk-in closet and a spa-like 5-piece ensuite with heated floors. In the basement, discover a full media room with wet bar, spacious family room, wine cellar, and ample additional storage. The lower level includes two separate suites, each with independent entrance and parking, a fully contained 2-bedroom suite in one wing and a 1-bedroom in-law suite in the other. Additional highlights include parking for 4+ vehicles plus RV/boat storage, steps to Knox Mountain hiking and biking trails, less than 5 minutes to downtown Kelowna, and close proximity to shops and restaurants. (id:6769)
Subarea
Glenmore
Lot
0.23
Year Built
2007
Sewer
Municipal sewage system
Flooring
Carpeted,Hardwood,Vinyl
Parking Type
5
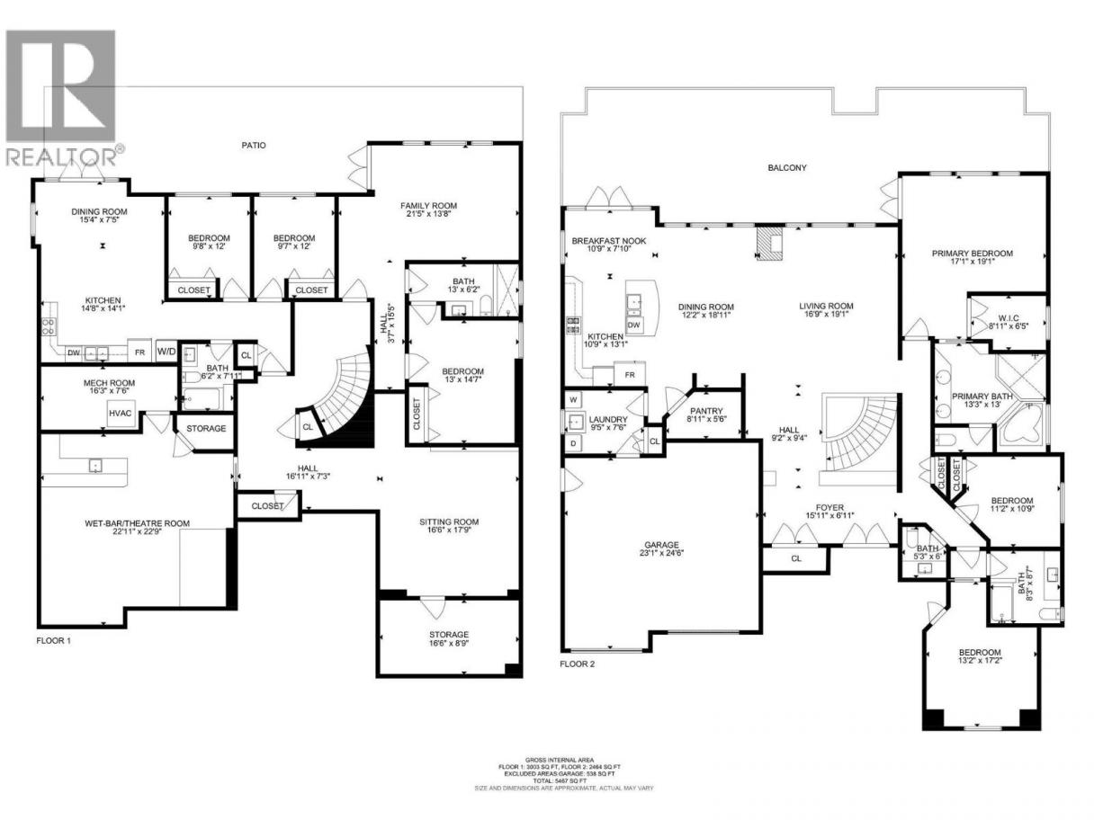
| Room | Floor | Dimension |
|---|---|---|
| 3pc Bathroom | Basement | 6'2'' x 7'1'' |
| Kitchen | Basement | 14'8'' x 14'1'' |
| Living room | Basement | 15'4'' x 7'5'' |
| Bedroom | Basement | 9'8'' x 12' |
| Bedroom | Basement | 9'7'' x 12' |
| Other | Basement | 21'5'' x 13'8'' |
| 3pc Bathroom | Basement | 13' x 6'2'' |
| Bedroom | Basement | 13' x 14'7'' |
| Wine Cellar | Basement | 6'3'' x 3'11'' |
| Storage | Basement | 16'6'' x 8'9'' |
| Media | Basement | 22'11'' x 22'7'' |
| Other | Basement | 16'6'' x 17'9'' |
| Other | Main level | 9'2'' x 9'4'' |
| Other | Main level | 8'11'' x 6'5'' |
| Bedroom | Main level | 11'2'' x 10'9'' |
| Primary Bedroom | Main level | 17'1'' x 19'1'' |
| 5pc Ensuite bath | Main level | 13'3'' x 13' |
| Bedroom | Main level | 13'2'' x 17'2'' |
| 3pc Bathroom | Main level | 8'3'' x 8'7'' |
Jerry Cai
(604) 218-7658
Oakwyn Realty Okanagan-Letnick Estates
(250) 861-5122
The property information on this website is derived from the Canadian Real Estate Association''s Data Distribution Facility (DDF®). DDF® references real estate listings held by various brokerage firms and franchisees. The accuracy of information is not guaranteed and should be independently verified. The trademarks REALTOR®, REALTORS® and the REALTOR® logo are controlled by The Canadian Real Estate Association (CREA) and identify real estate professionals who are members of CREA. The trademarks MLS®, Multiple Listing Service® and the associated logos are owned by CREA and identify the quality of services provided by real estate professionals who are members of CREA.
Listing data last updated date: 2026-02-17 03:06:38
