Single Family
Welcome to Deer Meadows, a vibrant and well-connected neighbourhood just steps from the Rail Trail, offering direct access to Wood Lake and the crystal-blue waters of Kalamalka Lake. Enjoy miles of scenic trail systems stretching from Vernon to Kelowna, all while being only a quick 10-minute drive to Kelowna International Airport and UBCO. This thoughtfully designed Monarch home, built by Woodland Crafted Homes, features a modern layout and distinctive exterior appeal. Offering 3 bedrooms and 2 bathrooms, the design is ideal for those seeking both style and functionality. Enter through the bright front patio into an open-concept kitchen and highly sought-after seamless living and dining space—perfect for everyday living and entertaining. The guest bedroom and spacious primary suite are positioned at the rear of the home, creating optimal space distribution and added privacy. Unlike other models, this home includes a full garage, providing secure parking and additional storage. The secluded, fully fenced backyard is designed to capture maximum sunshine, allowing homeowners to fully enjoy the Okanagan lifestyle. Rentals and pets are permitted, and short-term rentals are allowed, making this an excellent opportunity for both homeowners and investors alike. (id:6769)
Subarea
Lake Country East / Oyama
Lot
0.1
Year Built
2026
Sewer
Septic tank
Flooring
Vinyl
Parking Type
1
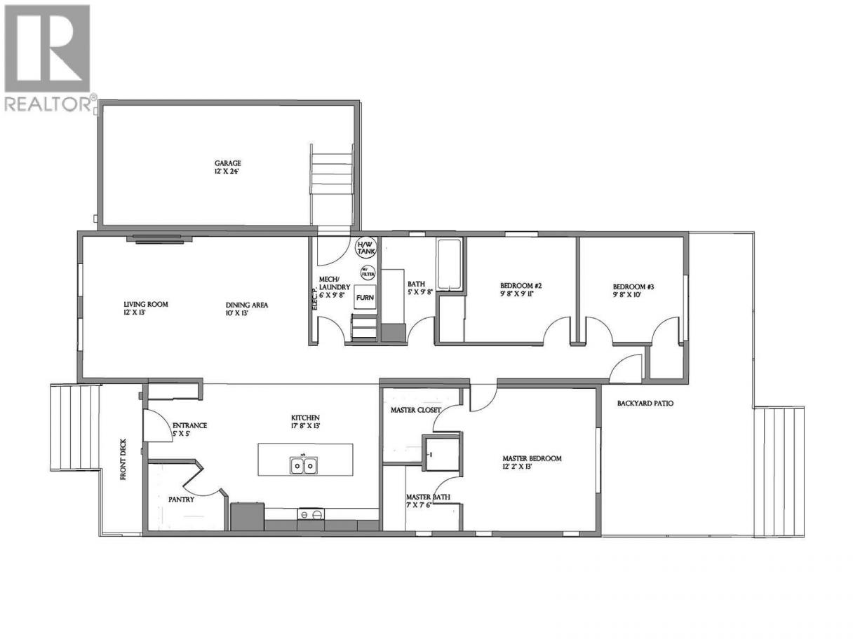
| Room | Floor | Dimension |
|---|---|---|
| Bedroom | Main level | 9'8'' x 10'0'' |
| 4pc Bathroom | Main level | 5'0'' x 9'8'' |
| Bedroom | Main level | 9'6'' x 13'0'' |
| Foyer | Main level | 5'0'' x 5'0'' |
| Dining room | Main level | 10'0'' x 13'0'' |
| Laundry room | Main level | 6'0'' x 9'8'' |
| 3pc Ensuite bath | Main level | 7'0'' x 7'6'' |
| Primary Bedroom | Main level | 12'2'' x 13'0'' |
| Kitchen | Main level | 17'0'' x 13'0'' |
| Living room | Main level | 12'0'' x 13'0'' |
Keith Watts
(250) 864-4241
RE/MAX Kelowna
(250) 717-5000
The property information on this website is derived from the Canadian Real Estate Association''s Data Distribution Facility (DDF®). DDF® references real estate listings held by various brokerage firms and franchisees. The accuracy of information is not guaranteed and should be independently verified. The trademarks REALTOR®, REALTORS® and the REALTOR® logo are controlled by The Canadian Real Estate Association (CREA) and identify real estate professionals who are members of CREA. The trademarks MLS®, Multiple Listing Service® and the associated logos are owned by CREA and identify the quality of services provided by real estate professionals who are members of CREA.
Listing data last updated date: 2026-02-06 02:56:38
