Single Family
*** OPEN HOUSE SUNDAY 1st February 2026 1-3PM *** A fantastic opportunity for first-time buyers, investors or families looking to enter the market in the desirable College Heights location. This well-appointed home offers two bedrooms and one bathroom with an open-concept living area featuring a bay window that fills the space with natural light. The generous dining area flows seamlessly into the open-plan kitchen. Additional features include forced-air heating with central air conditioning, Underground irrigation, central vacuum rough-in, an all-in-one washer and dryer, vaulted 9-foot ceilings and a skylight in the bathroom. Step outside to a large, private patio and garden area, perfect for relaxing or entertaining. The fully fenced yard offers excellent privacy, with ample garden space for flowers, vegetables, or outdoor enjoyment, and includes a hot tub for year-round use. Parking is well accommodated with two driveway spaces plus a single-car garage. Enjoy no pet restrictions and a low monthly bare land strata fee of just $145. Conveniently tucked away near the UBC Okanagan, KGH airport and local amenities. Outside, this home offers beautiful mountain views and stunning Okanagan sunsets. A great alternative to renting, own your own home today! (id:6769)
Subarea
North Glenmore
Lot
0.1
Year Built
2006
Sewer
Municipal sewage system
Parking Type
3
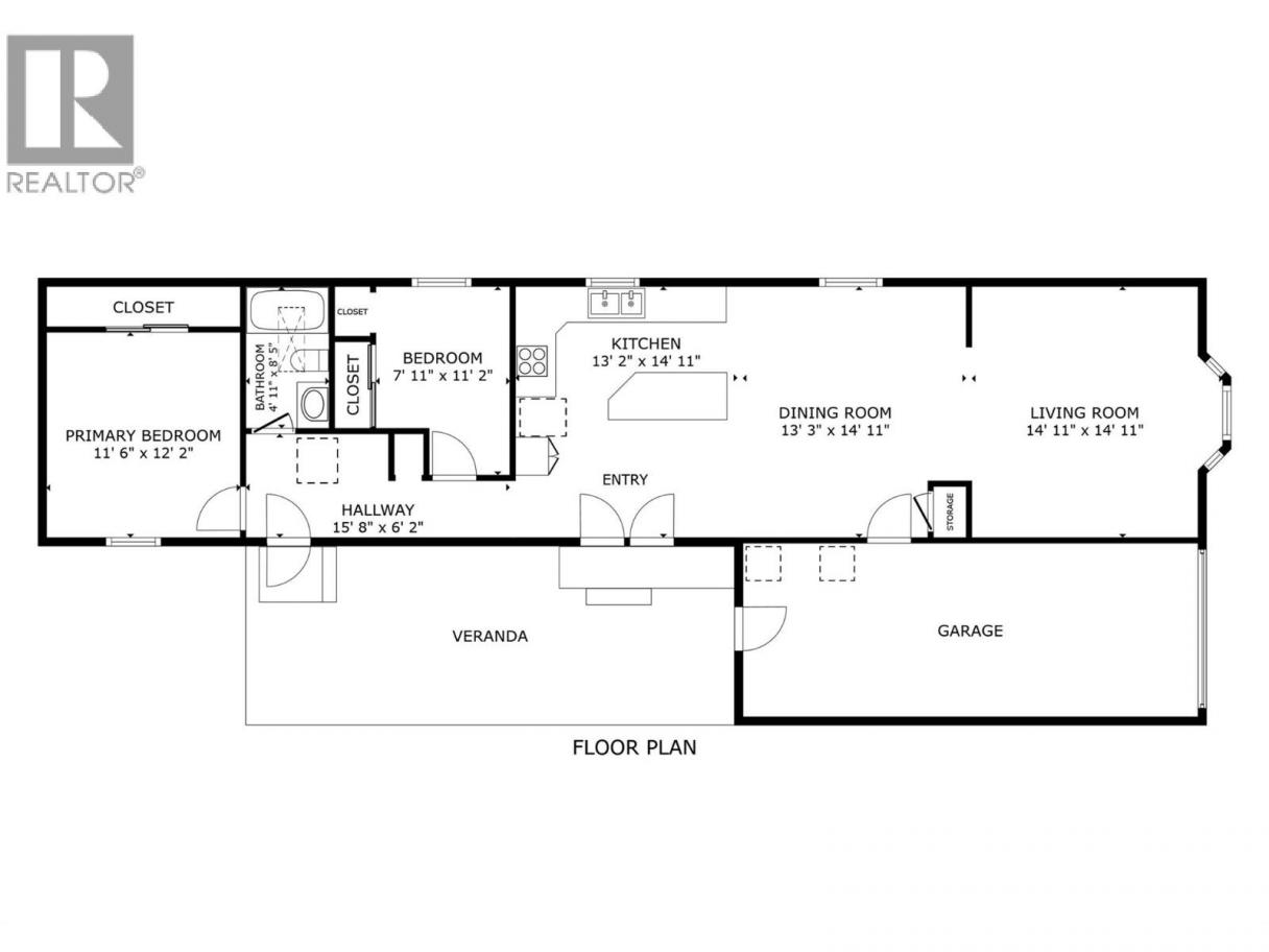
| Room | Floor | Dimension |
|---|---|---|
| Other | Main level | 19'4'' x 26' |
| Other | Main level | 12'4'' x 23' |
| Primary Bedroom | Main level | 11'4'' x 12' |
| Full bathroom | Main level | 8' x 4'10'' |
| Laundry room | Main level | 5'10'' x 5' |
| Bedroom | Main level | 12'2'' x 7'8'' |
| Kitchen | Main level | 12' x 14'8'' |
| Dining room | Main level | 14' x 14'8'' |
| Living room | Main level | 14'8'' x 13'2'' |
Jackie Bradford
(250) 575-6713
Century 21 Assurance Realty Ltd
(250) 869-0101
The property information on this website is derived from the Canadian Real Estate Association''s Data Distribution Facility (DDF®). DDF® references real estate listings held by various brokerage firms and franchisees. The accuracy of information is not guaranteed and should be independently verified. The trademarks REALTOR®, REALTORS® and the REALTOR® logo are controlled by The Canadian Real Estate Association (CREA) and identify real estate professionals who are members of CREA. The trademarks MLS®, Multiple Listing Service® and the associated logos are owned by CREA and identify the quality of services provided by real estate professionals who are members of CREA.
Listing data last updated date: 2026-01-27 02:35:07
