Single Family
If condo living and outdoor space had a perfect middle ground, this ground floor two bedroom home at Urbana would be it. With its own private entrance, oversized patio, and grass area, it offers a true townhouse feel without the townhouse price tag. And yes, not having to deal with buzzers or elevators is as good as it sounds. Inside, the open concept layout makes the most of 830 square feet, featuring two bedrooms and two bathrooms that work beautifully for a young couple, roommates, or a small family with a home office setup. Being in a newer building helps keep strata fees lower, while the smart design keeps everyday living easy and comfortable. The standout feature is the expansive patio and green space, ideal for hosting friends, relaxing after work, letting your four legged family members enjoy some fresh air (yes, this complex is very pet friendly!) or letting your morning coffee last a little longer. Located in the heart of Kelowna, you are close to shopping, dining, and daily essentials, with quick access downtown via the new overpass. Tucked away from highway noise, this is a rare ground floor opportunity that blends lifestyle, location, and long term value. Ground floor units like this do not come along often, so this one is worth a closer look. (id:6769)
Subarea
Kelowna South
Lot
0
Year Built
2019
Sewer
Municipal sewage system
Flooring
Carpeted,Tile,Vinyl
Parking Type
1
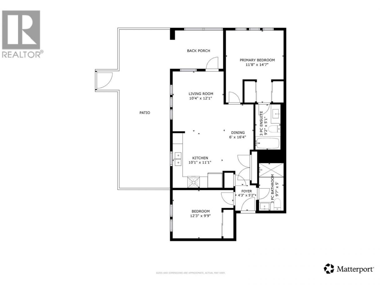
| Room | Floor | Dimension |
|---|---|---|
| 3pc Ensuite bath | Main level | 9'2'' x 5'1'' |
| Foyer | Main level | 4'3'' x 5'2'' |
| Bedroom | Main level | 12'3'' x 9'9'' |
| 3pc Bathroom | Main level | 9'7'' x 5'0'' |
| Kitchen | Main level | 10'1'' x 11'1'' |
| Dining room | Main level | 6'0'' x 16'4'' |
| Living room | Main level | 10'4'' x 12'1'' |
| Primary Bedroom | Main level | 11'8'' x 14'7'' |
Darcy Fiander
(250) 826-9196
Vantage West Realty Inc.
(250) 717-3133
The property information on this website is derived from the Canadian Real Estate Association''s Data Distribution Facility (DDF®). DDF® references real estate listings held by various brokerage firms and franchisees. The accuracy of information is not guaranteed and should be independently verified. The trademarks REALTOR®, REALTORS® and the REALTOR® logo are controlled by The Canadian Real Estate Association (CREA) and identify real estate professionals who are members of CREA. The trademarks MLS®, Multiple Listing Service® and the associated logos are owned by CREA and identify the quality of services provided by real estate professionals who are members of CREA.
Listing data last updated date: 2026-02-17 03:07:14
