Single Family
Welcome to 7575 Sun Valley Road, a private 10.03 acre retreat nestled in the peaceful community of Joe Rich. This 3-bedroom + den, 2-bathroom craftsman home offers nearly 2,200 sq.ft. of thoughtfully designed living space with stunning valley and mountain views. Inside, you’ll find rich dark cabinetry, quartz countertops, a stone backsplash, and heated flooring in the main bathroom. The spacious primary suite features an electric fireplace and plenty of natural light. The open-concept layout flows onto a wraparound deck complete with a hot tub, perfect for soaking in the panoramic views. This property is equipped with new windows, a 2019 hot water tank, and a 16 gal/min well pump that was installed in 2019! Also, all plumbing has been updated to PEX! A true highlight is the detached 2-bay shop with 240V and 200 amp service, 15-foot ceilings, 12 ft and 8 ft overhead doors, a hoist, water, and a wood stove—ideal for hobbyists or trades. There’s also an insulated chicken coop, ready for you to start collecting fresh eggs each morning. Located 30 minutes from Big White Ski Resort and close to small mountain lakes perfect for fishing. You’ll also have easy access to nearby ATV, hiking, and walking trails, all while being just 10 minutes from shopping, groceries, and other amenities. Whether you're looking for space, functionality, or just a quiet place to unwind, this property offers a rare combination of rural living and modern convenience. Schedule your showing today! (id:6769)
Subarea
Joe Rich
Lot
10.03
Year Built
1993
Sewer
Septic tank
Flooring
Carpeted,Hardwood,Laminate,Tile
Parking Type
14
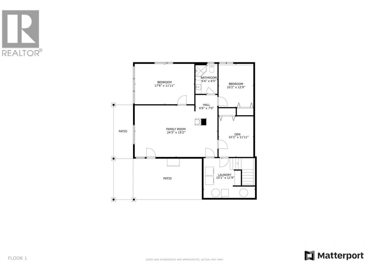
| Room | Floor | Dimension |
|---|---|---|
| Bedroom | Basement | 17'6'' x 11'11'' |
| Bedroom | Basement | 10'2'' x 12'9'' |
| 3pc Bathroom | Basement | 6'6'' x 8'5'' |
| Other | Basement | 6'6'' x 7'0'' |
| Family room | Basement | 24'3'' x 15'2'' |
| Laundry room | Basement | 15'1'' x 11'9'' |
| Den | Basement | 12'2'' x 11'11'' |
| Kitchen | Main level | 10'4'' x 8'11'' |
| Dining room | Main level | 12'7'' x 13'10'' |
| Living room | Main level | 16'4'' x 13'7'' |
| 3pc Bathroom | Main level | 6'9'' x 9'6'' |
| Primary Bedroom | Main level | 11'1'' x 26'0'' |
| Other | Main level | 8'4'' x 17'10'' |
| Foyer | Main level | 8'5'' x 11'9'' |
Nick Hazzi
(250) 878-6416
Vantage West Realty Inc.
(250) 717-3133
The property information on this website is derived from the Canadian Real Estate Association''s Data Distribution Facility (DDF®). DDF® references real estate listings held by various brokerage firms and franchisees. The accuracy of information is not guaranteed and should be independently verified. The trademarks REALTOR®, REALTORS® and the REALTOR® logo are controlled by The Canadian Real Estate Association (CREA) and identify real estate professionals who are members of CREA. The trademarks MLS®, Multiple Listing Service® and the associated logos are owned by CREA and identify the quality of services provided by real estate professionals who are members of CREA.
Listing data last updated date: 2026-01-30 03:56:36
