Single Family
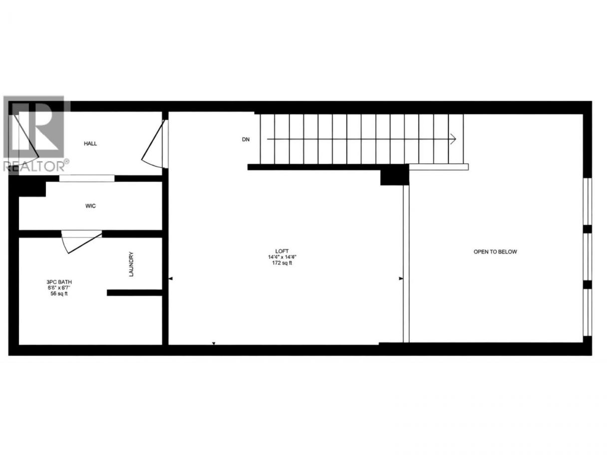
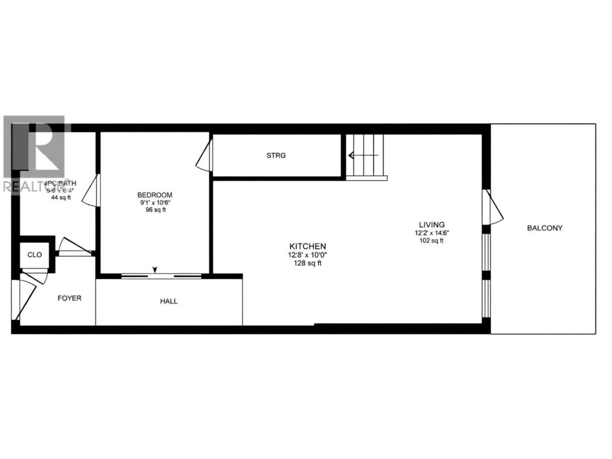
This top floor two-story loft at Central Green one offers a bright open layout with dramatic 18 foot ceilings and oversized tiered windows that flood the space with natural light. The kitchen is both functional and stylish featuring quartz countertops, stainless steel appliances with a built-in microwave, modern cabinetry and a generous double sink and a tile backsplash. The main living area flows seamlessly to a private balcony while the main level also includes a second bedroom and a full bathroom, ideal for guests or a home office upstairs the loft level is dedicated to a spacious primary retreat with a walk-in closet, three-piece ensuite, and in suite laundry with full-size stacked washer and dryer. A rare inconvenient feature the home offers two separate entrances one on each level, making access, easy and flexible the unit comes complete with one underground, parking stall and a large storage locker located near the upper entry, pet friendly with restrictions and rental friendly located just steps from downtown amenities, restaurants, boutique, shops, professional services, and transit. This is loft living at its best. (id:6769)
Subarea
Kelowna South
Lot
0
Year Built
2017
Sewer
Municipal sewage system
Flooring
Mixed Flooring
Parking Type
1
| Room | Floor | Dimension |
|---|---|---|
| Primary Bedroom | Second level | 14' x 14' |
| 3pc Ensuite bath | Second level | 8'6'' x 6'7'' |
| Bedroom | Main level | 9'1'' x 10'6'' |
| Living room | Main level | 12'2'' x 14'6'' |
| 4pc Bathroom | Main level | 8'4'' x 5'9'' |
| Kitchen | Main level | 12'8'' x 10' |
Matt Wilkie
(604) 831-4669
Sutton Group-West Coast Realty
(604) 415-9800
The property information on this website is derived from the Canadian Real Estate Association''s Data Distribution Facility (DDF®). DDF® references real estate listings held by various brokerage firms and franchisees. The accuracy of information is not guaranteed and should be independently verified. The trademarks REALTOR®, REALTORS® and the REALTOR® logo are controlled by The Canadian Real Estate Association (CREA) and identify real estate professionals who are members of CREA. The trademarks MLS®, Multiple Listing Service® and the associated logos are owned by CREA and identify the quality of services provided by real estate professionals who are members of CREA.
Listing data last updated date: 2026-04-12 02:38:16
