Single Family
This exceptional luxury home is nestled on a quiet cul de sac in Kelowna’s prestigious Glenmore neighbourhood and was reimagined in 2023 by an award winning design and build team. Offering over 5,000 sq ft, it is ideal for elegant entertaining and multigenerational living. The stunning living room features soaring 18 foot vaulted ceilings, wide plank white oak flooring, statement wood beams, archways, and refined European inspired finishes. The custom chef’s kitchen includes integrated appliances, a six burner Wolf gas range, custom white oak cabinetry, quartz counters and backsplash, and an oversized walk in pantry. A main floor office with custom built ins overlooks the backyard. Upstairs are four generous bedrooms, including a primary retreat with private balcony, spa inspired ensuite, soaker tub, walk in shower, and walk in closet. The private backyard oasis offers a saltwater pool, hot tub, stamped concrete patio, gas fire pit, lush landscaping, and a full size basketball court that converts to a winter skating rink. RV parking and space for boats or trailers is included. Additional highlights include a movie room, private gym, and a flexible one or two bedroom walkout in law suite that is ideal for family, guests, or a mortgage helper. Minutes to downtown Kelowna and walking distance to schools, parks, and shopping, with mountain and sunset views and Sonos sound throughout. A rare Glenmore offering that combines luxury, lifestyle, and functionality. (id:6769)
Subarea
Glenmore
Lot
0.22
Year Built
2006
Sewer
Municipal sewage system
Flooring
Carpeted,Hardwood,Tile
Parking Type
6
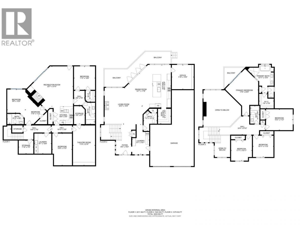
| Room | Floor | Dimension |
|---|---|---|
| 4pc Bathroom | Second level | 4'11'' x 9'6'' |
| Bedroom | Second level | 14'3'' x 11'2'' |
| Bedroom | Second level | 10'11'' x 11'5'' |
| Bedroom | Second level | 11'1'' x 10'11'' |
| 5pc Ensuite bath | Second level | 13'11'' x 15'0'' |
| Primary Bedroom | Second level | 17'6'' x 24'8'' |
| Storage | Basement | 7'10'' x 7'0'' |
| Utility room | Basement | 5'10'' x 9'10'' |
| Media | Basement | 11'9'' x 21'4'' |
| Laundry room | Basement | 9'1'' x 10'9'' |
| Gym | Basement | 10'6'' x 17'0'' |
| Den | Basement | 7'7'' x 7'2'' |
| 4pc Ensuite bath | Basement | 8'8'' x 5'6'' |
| 4pc Bathroom | Basement | 6'5'' x 11'8'' |
| Foyer | Main level | 8'2'' x 16'2'' |
| Laundry room | Main level | 9'1'' x 16'1'' |
| Dining room | Main level | 12'7'' x 17'8'' |
| Partial bathroom | Main level | 7'2'' x 10'10'' |
| Other | Main level | 22'11'' x 39'6'' |
Ho Nguyen
(250) 870-1509
Royal LePage Kelowna
(250) 860-1100
The property information on this website is derived from the Canadian Real Estate Association''s Data Distribution Facility (DDF®). DDF® references real estate listings held by various brokerage firms and franchisees. The accuracy of information is not guaranteed and should be independently verified. The trademarks REALTOR®, REALTORS® and the REALTOR® logo are controlled by The Canadian Real Estate Association (CREA) and identify real estate professionals who are members of CREA. The trademarks MLS®, Multiple Listing Service® and the associated logos are owned by CREA and identify the quality of services provided by real estate professionals who are members of CREA.
Listing data last updated date: 2026-01-21 01:47:09
