Single Family
Over 6000 square foot recently renovated six bedroom, six bathroom residence situated on 9.364 acres of land in the Ellison area of Kelowna with a huge pool, lake views, and more. The home has been renovated from top to bottom and down to the studs, including newer electrical, plumbing, drywall, insulation, exterior (including roof), all cosmetic finishings, and more, making this a showstopping renovation by Caliber Developments. Through the gated entry, you are immediately drawn to the wood and stone exterior of the home, with a huge oversized triple car garage and additional side garage, perfect for a dedicated workshop. The living room with over height ceilings/windows is complimented by a wood-burning stove and a cooled wine room. Down a half-level is the new kitchen, complimented by brand-new appliances, an emphatic double island, and a family room, all opening up to the outdoor living space for a perfect indoor/outdoor transition. Off the kitchen is a powder room, and bedroom/office. Upstairs, the family-friendly layout offers three bedrooms, including a spacious master bedroom with his/her sinks, a freestanding tub, and tiled shower. There is a 35' by 34' recreational room, perfect for a studio/office, gym, kids room, etc, with a bathroom and rough-ins for a bar. There is a fully self-contained legal suite in the basement, great for guests! Outside, the infinity pool offers expansive views of the lake and valley ahead, and concrete areas for entertaining. (id:6769)
Subarea
Ellison
Lot
9.36
Year Built
1989
Sewer
Septic tank
Flooring
Carpeted,Hardwood,Slate
Parking Type
3
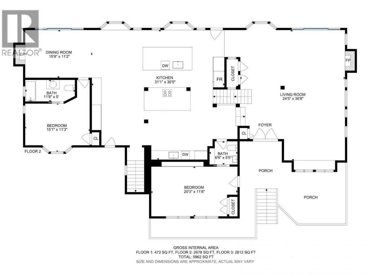
| Room | Floor | Dimension |
|---|---|---|
| 3pc Bathroom | Second level | 7'10'' x 7'7'' |
| Recreation room | Second level | 35'2'' x 34'11'' |
| 4pc Bathroom | Second level | 5'7'' x 8'0'' |
| Bedroom | Second level | 10'8'' x 13'8'' |
| Bedroom | Second level | 9'6'' x 17'3'' |
| Other | Second level | 9'6'' x 11'4'' |
| 5pc Ensuite bath | Second level | 13'0'' x 14'8'' |
| Primary Bedroom | Second level | 17'4'' x 14'8'' |
| Storage | Basement | 11'1'' x 4'8'' |
| Laundry room | Basement | 24'6'' x 16'9'' |
| Bedroom | Main level | 20'3'' x 11'8'' |
| 2pc Bathroom | Main level | 6'6'' x 5'5'' |
| 3pc Ensuite bath | Main level | 11'8'' x 5'0'' |
| Bedroom | Main level | 15'1'' x 11'3'' |
| Dining room | Main level | 15'9'' x 11'2'' |
| Kitchen | Main level | 31'1'' x 30'5'' |
| Living room | Main level | 24'5'' x 30'8'' |
| Full bathroom | Additional Accommodation | 10'5'' x 13'1'' |
| Bedroom | Additional Accommodation | 16'5'' x 13'3'' |
Scott Marshall
(250) 470-2388
Sotheby's International Realty Canada
(250) 469-9547
The property information on this website is derived from the Canadian Real Estate Association''s Data Distribution Facility (DDF®). DDF® references real estate listings held by various brokerage firms and franchisees. The accuracy of information is not guaranteed and should be independently verified. The trademarks REALTOR®, REALTORS® and the REALTOR® logo are controlled by The Canadian Real Estate Association (CREA) and identify real estate professionals who are members of CREA. The trademarks MLS®, Multiple Listing Service® and the associated logos are owned by CREA and identify the quality of services provided by real estate professionals who are members of CREA.
Listing data last updated date: 2026-04-11 04:39:00
