Single Family
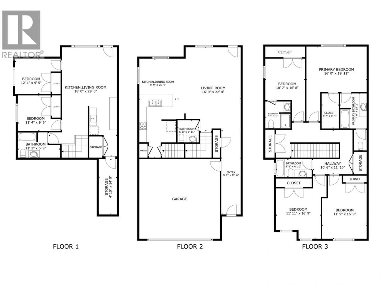
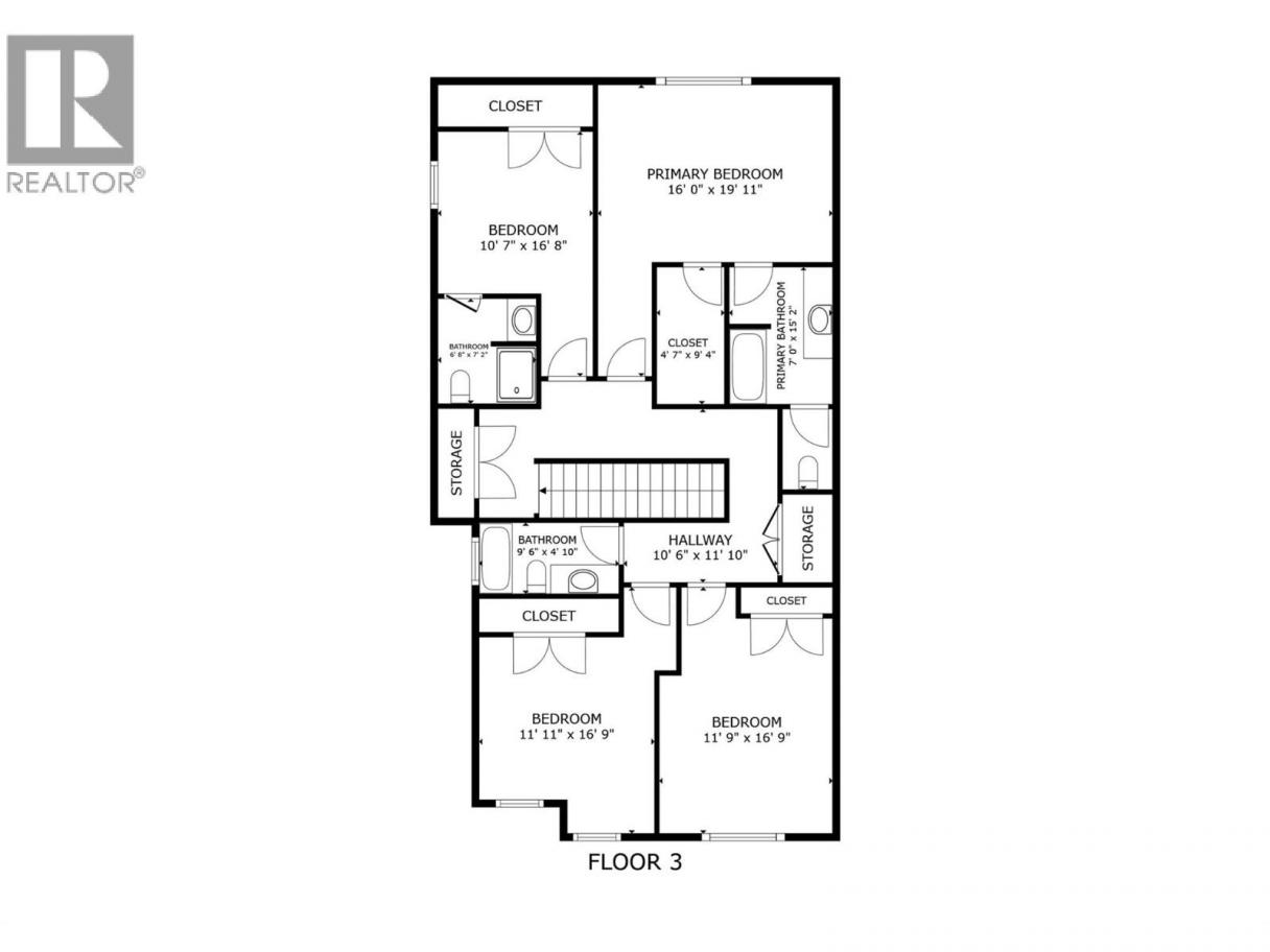
Welcome to 148 Summerhill Place, a beautifully designed 6-bedroom, 5-bathroom duplex offering over 3,000 sq ft of versatile living space in the highly desirable North Glenmore neighbourhood. Nestled on a quiet cul-de-sac, this home is ideal for families, investors, or those seeking comfortable multi-generational living. A thoughtfully planned layout features four spacious bedrooms on the top floor, creating the perfect family-friendly retreat. The main level boasts a bright, open-concept design anchored by an electric fireplace with a custom built-in entertainment unit, seamlessly connecting the living space to a large deck off the living room—ideal for entertaining or unwinding in a peaceful setting. The lower level includes a self-contained 2-bedroom in-law suite with a separate entrance, kitchenette, and covered patio , offering excellent flexibility for extended family or added value. Parking is abundant with approximately four open parking spaces plus a single-car garage, a rare find in this area. Adding to the appeal, the other half of the duplex is also available, presenting a unique opportunity for investors or multi-generational families to secure side-by-side living in one of Kelowna’s most sought-after communities. Close to schools, parks, and everyday amenities, this is North Glenmore living at its finest. All measurements and sizes are approximate; actual dimensions may vary and should be verified by the buyer if deemed important. (id:6769)
Subarea
North Glenmore
Lot
0.08
Year Built
2021
Sewer
Municipal sewage system
Flooring
Carpeted,Laminate,Tile
Parking Type
3
| Room | Floor | Dimension |
|---|---|---|
| Bedroom | Second level | 10'6'' x 14'10'' |
| 3pc Ensuite bath | Second level | Measurements not available |
| 4pc Bathroom | Second level | Measurements not available |
| 4pc Ensuite bath | Second level | Measurements not available |
| Bedroom | Second level | 10'11'' x 11'10'' |
| Bedroom | Second level | 10'4'' x 11'0'' |
| Primary Bedroom | Second level | 16'0'' x 12'2'' |
| 4pc Bathroom | Basement | Measurements not available |
| Storage | Basement | 4'7'' x 14'9'' |
| 2pc Bathroom | Main level | Measurements not available |
| Foyer | Main level | 23'7'' x 5'1'' |
| Kitchen | Main level | 11'7'' x 13'2'' |
| Dining room | Main level | 8'6'' x 11'7'' |
| Living room | Main level | 19'3'' x 14'6'' |
| Bedroom | Additional Accommodation | 9'5'' x 8'9'' |
| Primary Bedroom | Additional Accommodation | 9'5'' x 9'2'' |
| Kitchen | Additional Accommodation | 10'2'' x 7'2'' |
| Living room | Additional Accommodation | 15'5'' x 14'6'' |
Raj Kandola
(250) 870-3294
Century 21 Assurance Realty Ltd
(250) 869-0101
The property information on this website is derived from the Canadian Real Estate Association''s Data Distribution Facility (DDF®). DDF® references real estate listings held by various brokerage firms and franchisees. The accuracy of information is not guaranteed and should be independently verified. The trademarks REALTOR®, REALTORS® and the REALTOR® logo are controlled by The Canadian Real Estate Association (CREA) and identify real estate professionals who are members of CREA. The trademarks MLS®, Multiple Listing Service® and the associated logos are owned by CREA and identify the quality of services provided by real estate professionals who are members of CREA.
Listing data last updated date: 2026-04-13 02:49:19
