Single Family
Experience elevated living at Southwind at Sarsons in Kelowna’s sought-after Lower Mission. This top-floor corner suite features soaring vaulted ceilings, premium finishes, and high-end appliances. With over 1,400 sq. ft. of thoughtfully designed space and a spacious partially covered deck, the home offers an ideal blend of luxury and comfort. Residents enjoy two secure underground parking stalls and exclusive access to a first-class clubhouse, complete with an owner’s lounge, fully equipped gym, hot tub, and a stunning indoor/outdoor pool. Situated in the heart of the Lower Mission, this award-winning development provides a maintenance-free, lock-and-go lifestyle—an exceptional choice for those seeking quality, convenience, and refined living. (id:6769)
Subarea
Lower Mission
Lot
0
Year Built
2007
Sewer
Municipal sewage system
Parking Type
2
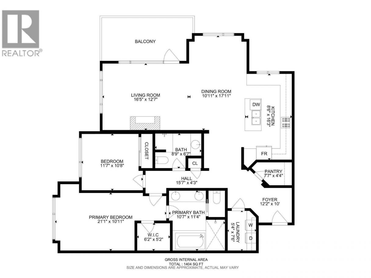
| Room | Floor | Dimension |
|---|---|---|
| Laundry room | Main level | 5'4'' x 7'6'' |
| Full bathroom | Main level | 8'9'' x 6'7'' |
| Bedroom | Main level | 11'7'' x 10'8'' |
| Full ensuite bathroom | Main level | 10'7'' x 11'4'' |
| Primary Bedroom | Main level | 21'1'' x 10'11'' |
| Dining room | Main level | 10'11'' x 17'11'' |
| Living room | Main level | 16'5'' x 12'7'' |
| Kitchen | Main level | 16'3'' x 8'6'' |
| Foyer | Main level | 12'2'' x 10'0'' |
Dallas Crick
(250) 864-7874
Chamberlain Property Group
(778) 755-1177
The property information on this website is derived from the Canadian Real Estate Association''s Data Distribution Facility (DDF®). DDF® references real estate listings held by various brokerage firms and franchisees. The accuracy of information is not guaranteed and should be independently verified. The trademarks REALTOR®, REALTORS® and the REALTOR® logo are controlled by The Canadian Real Estate Association (CREA) and identify real estate professionals who are members of CREA. The trademarks MLS®, Multiple Listing Service® and the associated logos are owned by CREA and identify the quality of services provided by real estate professionals who are members of CREA.
Listing data last updated date: 2026-02-20 04:05:31
