Recreational
Cottage life awaits on Lake Lane at Holiday Park Resort! This beautifully maintained, original owner 2012 Modulux Design Park Model offers 778 sqft of comfortable year-round living with rare two-bedroom flexibility. Set near the shores of Ellison Lake, the home enjoys expansive lake and mountain views. Inside, the open layout features warm pine cabinetry, upgraded laminate and ceramic flooring, full-size laundry, hot water on demand, central furnace and A/C. The spacious king-sized primary bedroom provides excellent storage, while the second bedroom suits guests or a home office. A bright 4-season sunroom adds valuable extra living space. The 2,594 sqft lot is designed for easy Okanagan living with a double concrete pad, insulated skirting with storage, an extended covered patio, underground irrigation, ample parking, a golf-cart space, custom sunshade, and an insulated shed. Holiday Park Resort is an amenity-rich, gated community lifestyle with pools, hot tubs, pickleball courts, activity centres, walking paths, and 24/7 security. Maintenance fees ($5,762.72) cover water, sewer, garbage, snow removal, security, and full access to amenities. Short and long-term rentals are allowed, and pets are welcome. Registered federal prepaid lease to 2046. Located near the Kelowna airport, Okanagan Golf Club, UBCO, Big White, Sparkling Hill, and Lake Country, this is the perfect getaway, investment property, or full-time home where lake living truly shines. POTENTIAL FINANCING AVAILABLE! (id:6769)
Subarea
Lake Country East / Oyama
Lot
0.06
Year Built
2012
Sewer
Septic tank
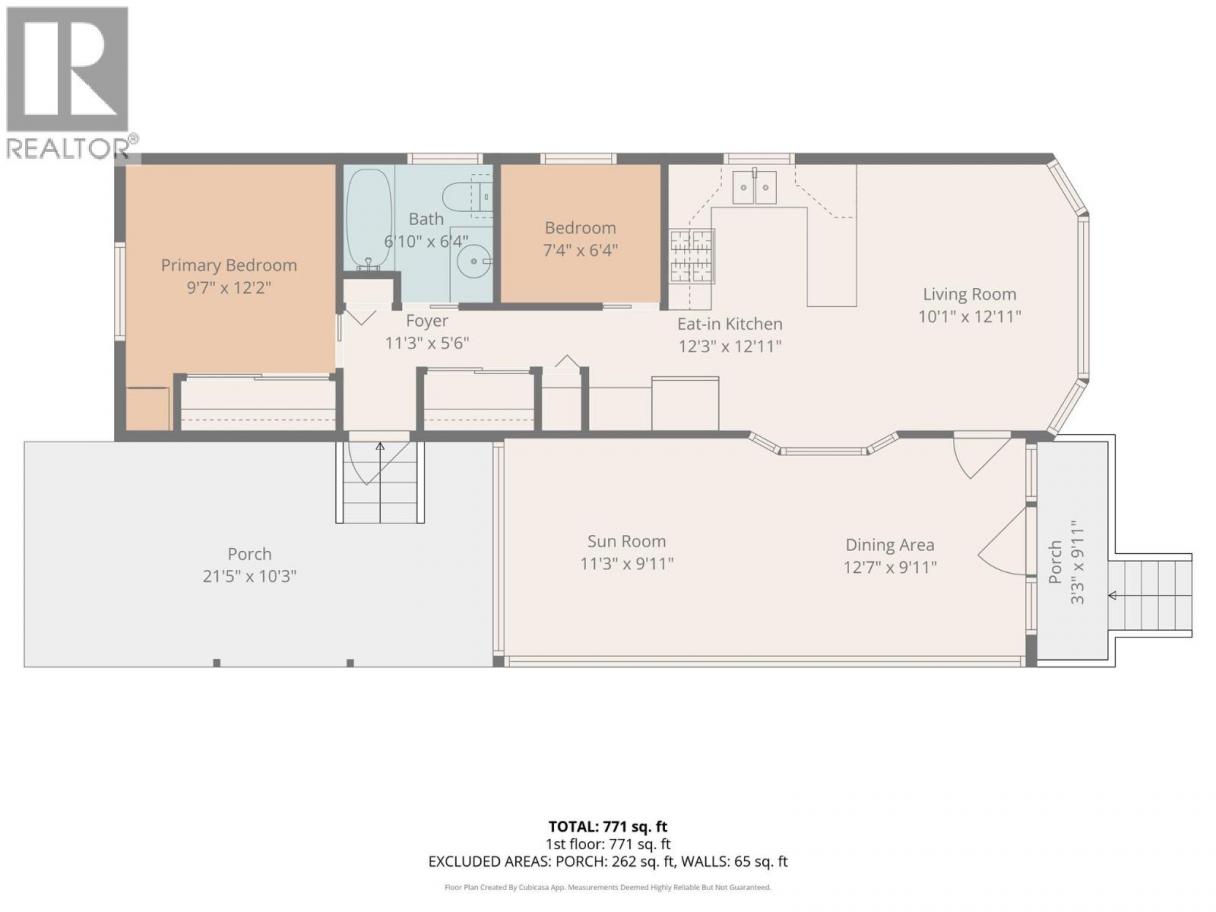
| Room | Floor | Dimension |
|---|---|---|
| Sunroom | Main level | 23'10'' x 9'11'' |
| Living room | Main level | 12'11'' x 10'1'' |
| Bedroom | Main level | 7'4'' x 6'4'' |
| Kitchen | Main level | 12'11'' x 12'3'' |
| Full bathroom | Main level | 6'10'' x 6'4'' |
| Primary Bedroom | Main level | 12'2'' x 9'7'' |
David Ghent-Kyle
(705) 822-6500
eXp Realty (Kelowna)
(833) 817-6506
The property information on this website is derived from the Canadian Real Estate Association''s Data Distribution Facility (DDF®). DDF® references real estate listings held by various brokerage firms and franchisees. The accuracy of information is not guaranteed and should be independently verified. The trademarks REALTOR®, REALTORS® and the REALTOR® logo are controlled by The Canadian Real Estate Association (CREA) and identify real estate professionals who are members of CREA. The trademarks MLS®, Multiple Listing Service® and the associated logos are owned by CREA and identify the quality of services provided by real estate professionals who are members of CREA.
Listing data last updated date: 2026-05-22 04:41:11
