Single Family
PRICE REALIGNMENT!!! This exquisite Step 4 energy-rated Wilden home blends refined design, thoughtful functionality, and exceptional efficiency. The main level offers three spacious bedrooms and two bathrooms, an ideal layout for families, complemented by a versatile bonus bedroom or office space on the lower level and a large, beautifully finished 1-bed, 1-bath legal suite. Soaring 9-ft ceilings up and down enhance the bright, open layout, highlighted by waterfall-edge countertops, high-end cabinetry and appliances, white oak wide plank hardwood floors, a gas fireplace, heated ensuite floors, and on-demand hot water. Designed for modern living, it features a dual-fuel heating system, HRV system, and upgraded electrical with 200-amp service to the main home and a separate 100-amp service for the suite. EV and hot tub wiring, epoxy decking, and generous storage, including a large covered exterior storage area that allows you to actually park in the expansive garage, add convenience and practicality. Outdoor living is equally impressive, with a fully fenced backyard, covered deck, expansive patio with a built-in fire pit, and a private front balcony. Every detail of this beautifully landscaped property reflects quality craftsmanship and enduring value, offering a seamless blend of luxury, comfort, and sustainability in one of Wilden’s most desirable neighbourhoods. (id:6769)
Subarea
Wilden
Lot
0.19
Year Built
2020
Sewer
Municipal sewage system
Flooring
Carpeted,Hardwood,Vinyl
Parking Type
4
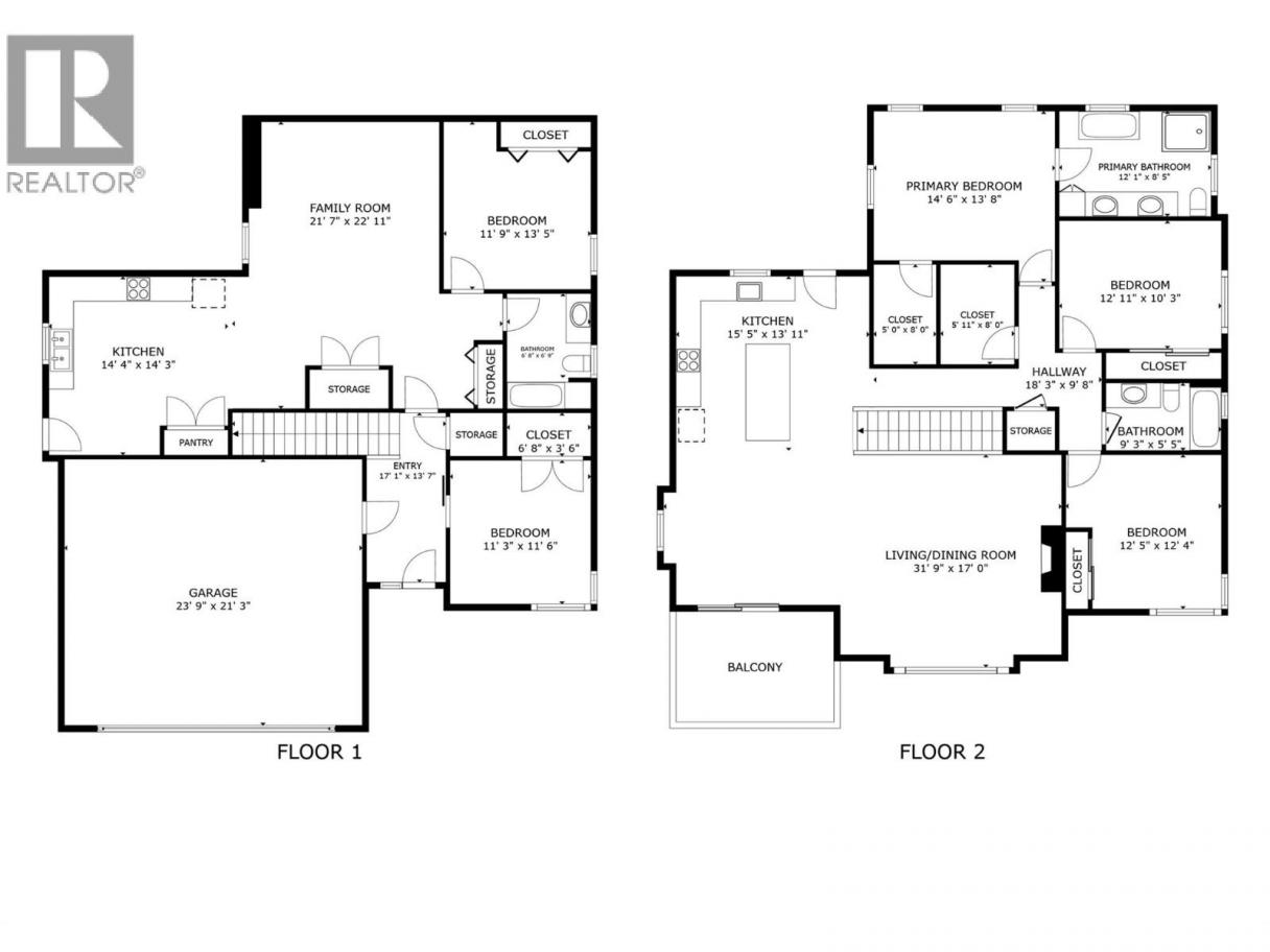
| Room | Floor | Dimension |
|---|---|---|
| Den | Lower level | 11'3'' x 11'6'' |
| Bedroom | Main level | 12'5'' x 12'4'' |
| Bedroom | Main level | 12'11'' x 10'3'' |
| Full bathroom | Main level | 9'3'' x 5'5'' |
| Full ensuite bathroom | Main level | 12'1'' x 8'5'' |
| Primary Bedroom | Main level | 14'6'' x 13'8'' |
| Living room | Main level | 21'7'' x 22'11'' |
| Kitchen | Main level | 15'5'' x 13'11'' |
| Full bathroom | Additional Accommodation | 6'8'' x 6'9'' |
| Living room | Additional Accommodation | 21'7'' x 22'11'' |
| Primary Bedroom | Additional Accommodation | 11'9'' x 13'5'' |
| Kitchen | Additional Accommodation | 14'4'' x 14'3'' |
Ryan Brown
(250) 859-0226
Century 21 Assurance Realty Ltd
(250) 869-0101
The property information on this website is derived from the Canadian Real Estate Association''s Data Distribution Facility (DDF®). DDF® references real estate listings held by various brokerage firms and franchisees. The accuracy of information is not guaranteed and should be independently verified. The trademarks REALTOR®, REALTORS® and the REALTOR® logo are controlled by The Canadian Real Estate Association (CREA) and identify real estate professionals who are members of CREA. The trademarks MLS®, Multiple Listing Service® and the associated logos are owned by CREA and identify the quality of services provided by real estate professionals who are members of CREA.
Listing data last updated date: 2025-12-11 02:44:14
