Single Family
Beautiful Rancher on a quiet cul-de-sac in Kelowna's sought after Wilden Neighborhood. As you step through the front entry of this 4,357 sq ft home, you’re greeted by the elegance of large format open-concept layout. Natural light fills the main level, highlighting the ten-foot tray ceilings and warm hardwood floors. The heart of the home is the two-tone kitchen, an elegant blend of custom shaker-style cabinetry, granite countertops and spacious island. Gallery edition appliances with an oversized stainless steel fridge/freezer, glass cook top oven and dishwasher. From here, the flow leads seamlessly into the living area with a cozy gas fireplace. Enjoy an entertainers lifestyle with smart home tech with built in speakers and smart lighting. The dining fits a large table and walks onto the patio. Here you’ll find vaulted timber post-and-beam construction. A concrete outdoor kitchen with a gas cooktop, and private yard ready to be personalized. The serene primary suite offers a spa-inspired ensuite with travertine tile, soaker tub, and a multi-zone luxury shower. The comfort continues with a NuWave in-floor heat, walk-in closet and a connected laundry room. Additionally on the main floor you'll find a second bedroom/office/den and a full guest bath. Downstairs, a blank-canvas offers limitless potential for additional bedrooms, a future suite, or rec room. This home perfectly blends elegance and lifestyle close to amenities and rec. Ample storage and RV/ additional parking. (id:6769)
Subarea
Wilden
Lot
0.2
Year Built
2010
Sewer
Municipal sewage system
Flooring
Carpeted,Hardwood,Porcelain Tile,Tile
Parking Type
2
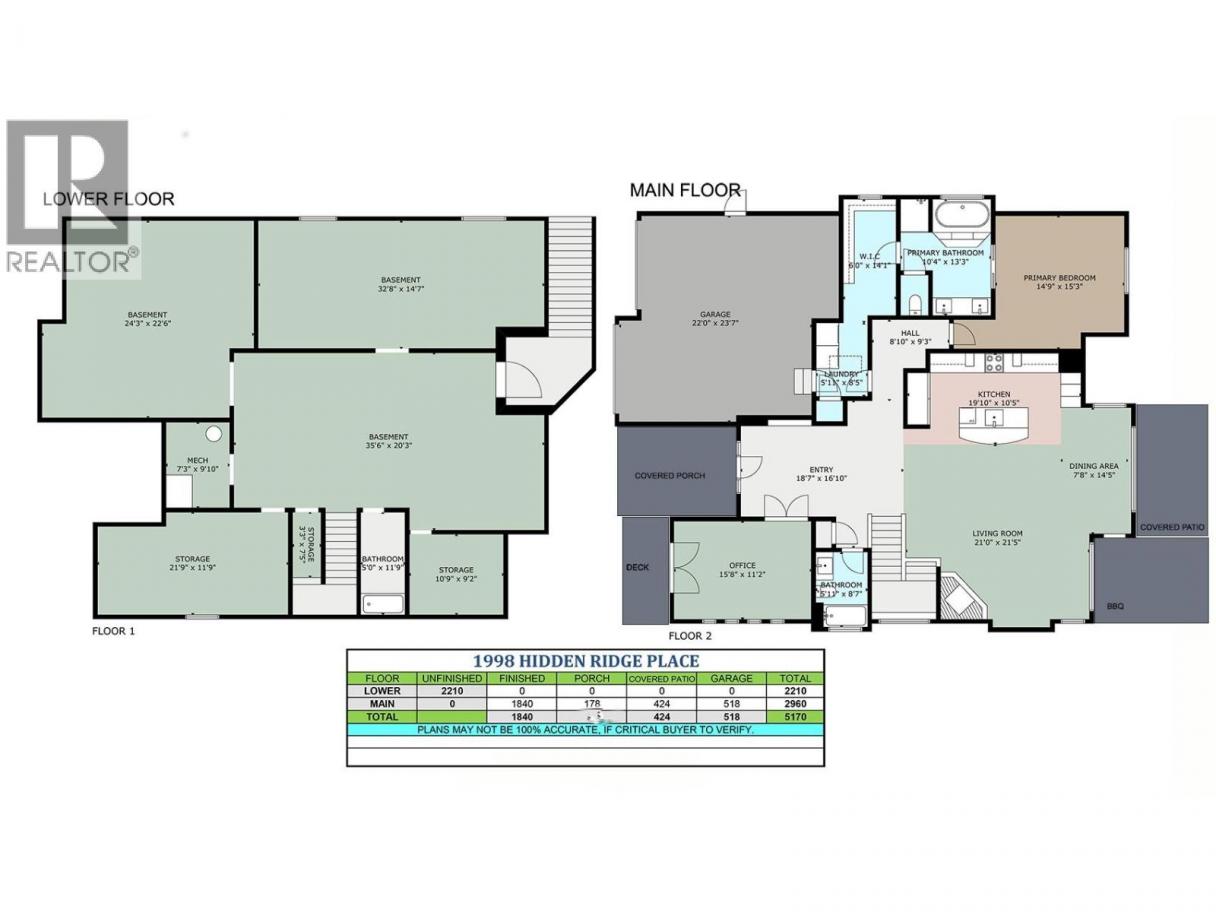
| Room | Floor | Dimension |
|---|---|---|
| Storage | Main level | 6' x 14' |
| Laundry room | Main level | 5'11'' x 8'5'' |
| 5pc Ensuite bath | Main level | 10'4'' x 13'3'' |
| Primary Bedroom | Main level | 14'9'' x 15'3'' |
| Dining room | Main level | 7'8'' x 14'5'' |
| Living room | Main level | 21' x 21'5'' |
| Kitchen | Main level | 19'10'' x 10'5'' |
| 4pc Bathroom | Main level | 5'11'' x 8'7'' |
| Bedroom | Main level | 15'8'' x 11'2'' |
| Foyer | Main level | 18'7'' x 16'10'' |
Steffie Brenner
(250) 549-9400
Coldwell Banker Executives Realty
(250) 549-2103
The property information on this website is derived from the Canadian Real Estate Association''s Data Distribution Facility (DDF®). DDF® references real estate listings held by various brokerage firms and franchisees. The accuracy of information is not guaranteed and should be independently verified. The trademarks REALTOR®, REALTORS® and the REALTOR® logo are controlled by The Canadian Real Estate Association (CREA) and identify real estate professionals who are members of CREA. The trademarks MLS®, Multiple Listing Service® and the associated logos are owned by CREA and identify the quality of services provided by real estate professionals who are members of CREA.
Listing data last updated date: 2026-05-09 04:20:11
