Single Family
Welcome to easy living in Rose Valley! This beautifully renovated 3-bedroom rancher (plus a spacious den for your home office or playroom) offers the kind of comfort and flow that makes daily life feel effortless. The modern kitchen steals the show with crisp finishes and plenty of workspace—perfect for family dinners or casual evenings with friends. Step outside to a huge back deck (720 sq. ft) designed for lounging, grilling, and soaking up the Okanagan sunshine. With everything on one level, it’s ideal for young families, first-time buyers, or downsizers ready to simplify without compromise. There’s also plenty of parking—bring your boat, small RV, or that extra vehicle you swear you’ll sell one day. Located close to Rose Valley Elementary, backing onto Horizon Park, and just minutes from the bridge, this home combines convenience, value, and lifestyle in one inviting package. Come see why one-level living in Rose Valley feels so right. (id:6769)
Subarea
West Kelowna Estates
Lot
0.22
Year Built
1989
Sewer
Municipal sewage system
Parking Type
4
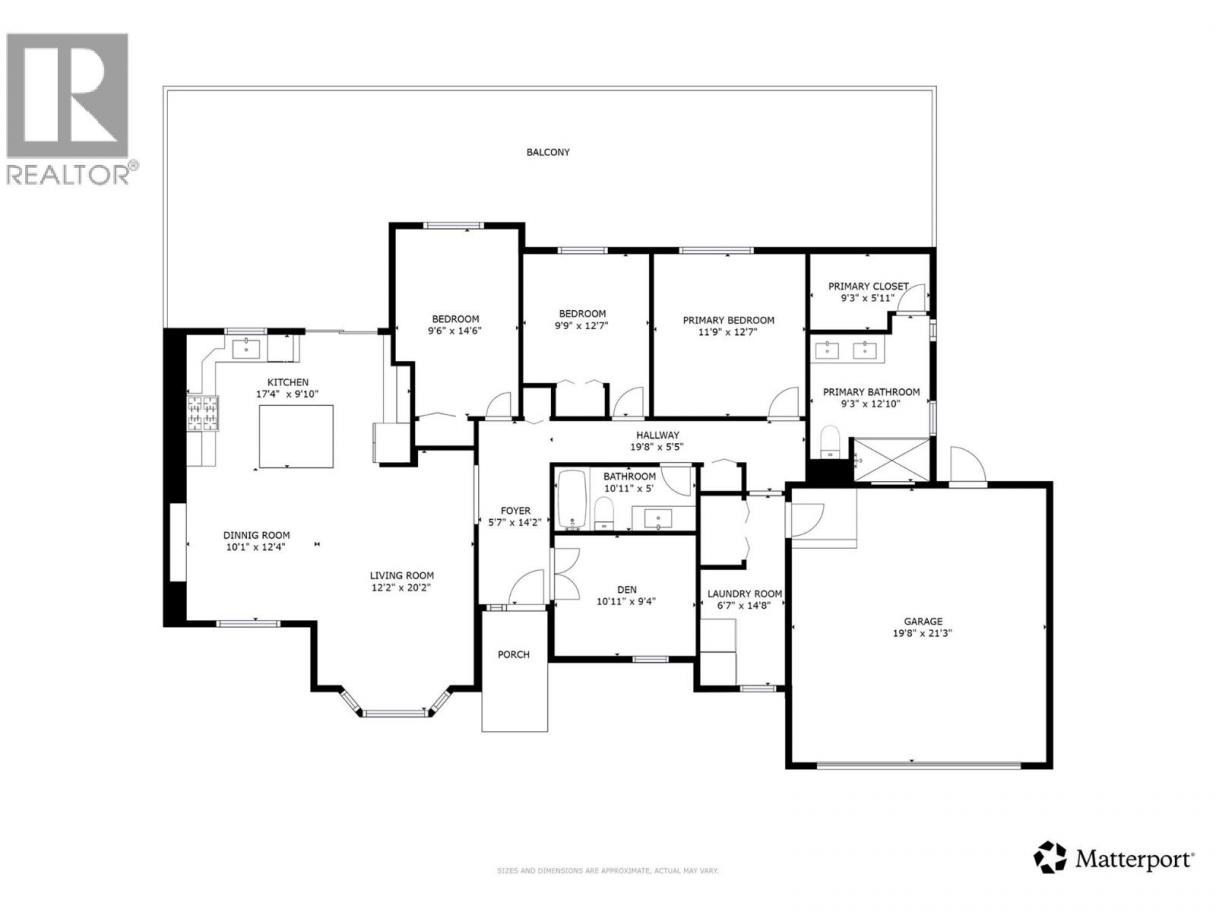
| Room | Floor | Dimension |
|---|---|---|
| Foyer | Main level | 5'7'' x 14'2'' |
| Living room | Main level | 12'2'' x 20'2'' |
| Dining room | Main level | 10'1'' x 12'4'' |
| Kitchen | Main level | 17'4'' x 9'10'' |
| Den | Main level | 10'11'' x 9'4'' |
| Bedroom | Main level | 9'6'' x 14'6'' |
| Bedroom | Main level | 9'9'' x 12'7'' |
| Other | Main level | 19'8'' x 5'5'' |
| 3pc Bathroom | Main level | 10'11'' x 5'0'' |
| Laundry room | Main level | 6'7'' x 14'8'' |
| Primary Bedroom | Main level | 11'9'' x 12'7'' |
| Other | Main level | 9'3'' x 5'11'' |
| 4pc Ensuite bath | Main level | 9'3'' x 12'10'' |
Adam Smith
(604) 813-0142
Vantage West Realty Inc.
(250) 717-3133
The property information on this website is derived from the Canadian Real Estate Association''s Data Distribution Facility (DDF®). DDF® references real estate listings held by various brokerage firms and franchisees. The accuracy of information is not guaranteed and should be independently verified. The trademarks REALTOR®, REALTORS® and the REALTOR® logo are controlled by The Canadian Real Estate Association (CREA) and identify real estate professionals who are members of CREA. The trademarks MLS®, Multiple Listing Service® and the associated logos are owned by CREA and identify the quality of services provided by real estate professionals who are members of CREA.
Listing data last updated date: 2025-11-20 04:11:32
