Single Family
Welcome to 4693 Raymer Rd which is positioned on a flat 0.30-acre corner lot in the heart of Lower Mission, this property offers an opportunity for investors and developers alike. With three access points and potential for up to four dwellings, it’s a prime candidate for redevelopment—or a smart buy-and-hold with options. Development opportunities include building a second home with a suite not to mention adding a suite to the main - a unique way to owning your own fourplex. It also has the potential to support 4 townhouses with generous living space. The existing 4-bed, 2-bath home offers over 2,200 sq ft of finished and unfinished space and can easily be lived in or rented while future plans take shape. Keep the house, build additional units, or explore higher density options—this is a property where flexibility meets opportunity. Pictures are one thing but this property has to be seen to appreciate it's true potential.Located in a quiet, well-established pocket of Lower Mission, you're just minutes from schools, parks, shopping, groceries, beach and all the lifestyle perks this sought-after area offers. Whether you’re looking to capitalize now or plan for the future, this is corner-lot potential at its finest. (id:6769)
Subarea
Lower Mission
Lot
0.3
Year Built
1961
Sewer
Municipal sewage system
Parking Type
4
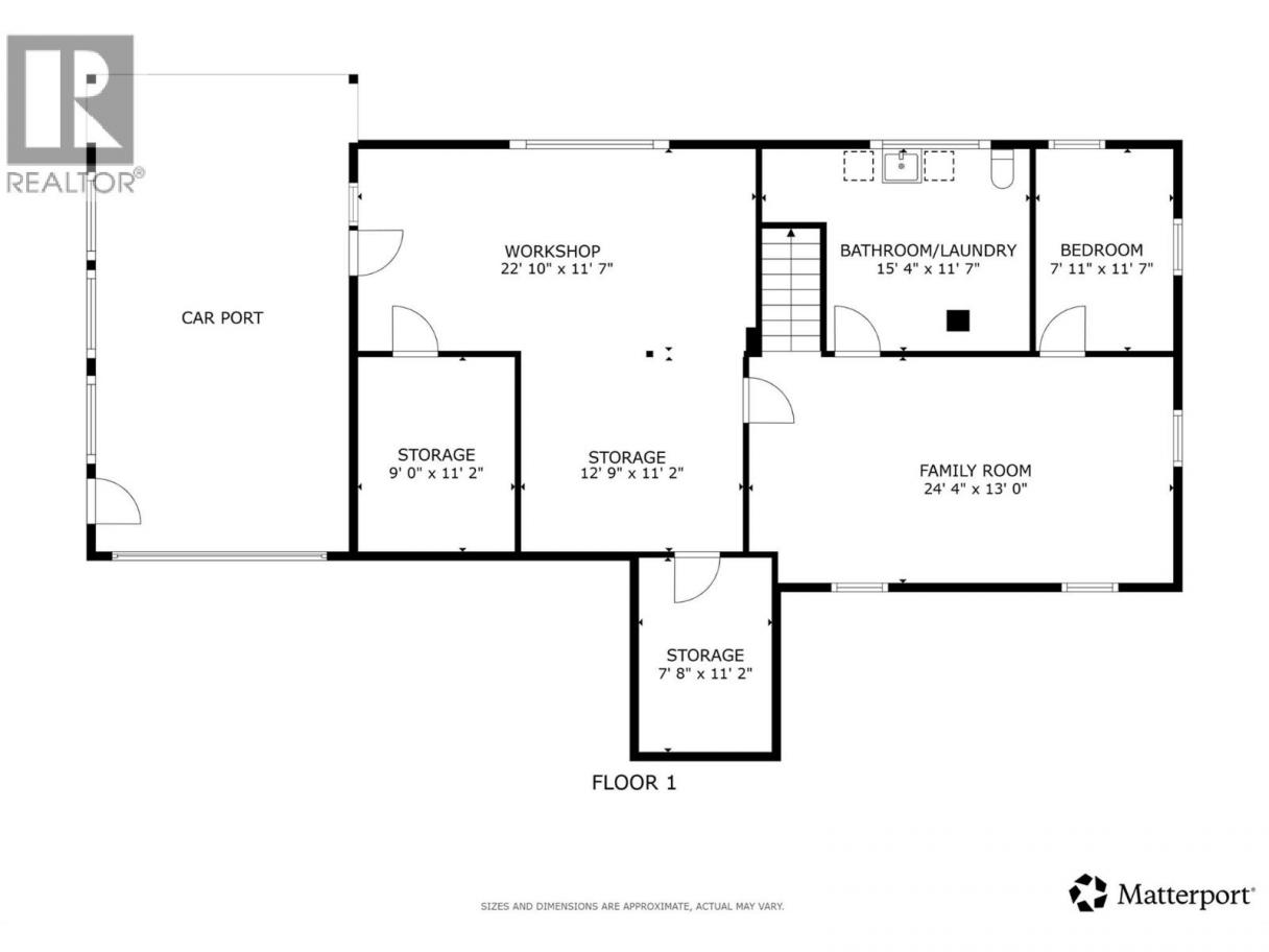
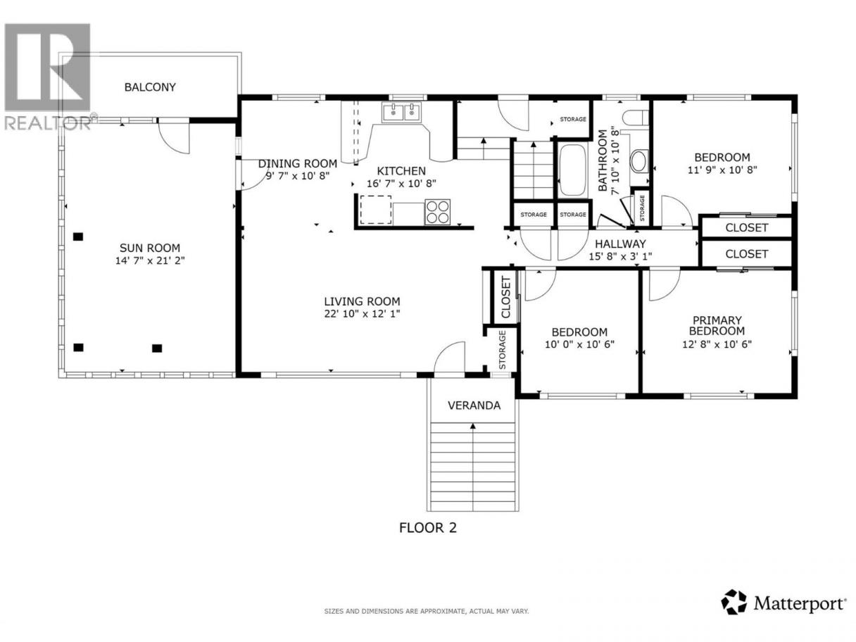
| Room | Floor | Dimension |
|---|---|---|
| Storage | Basement | 7'8'' x 11'2'' |
| Storage | Basement | 12'9'' x 11'2'' |
| Workshop | Basement | 22'10'' x 11'7'' |
| Storage | Basement | 9'0'' x 11'2'' |
| 1pc Bathroom | Basement | 15'4'' x 11'7'' |
| Bedroom | Basement | 7'11'' x 11'7'' |
| Family room | Basement | 24'4'' x 13'0'' |
| Sunroom | Main level | 14'7'' x 21'2'' |
| Dining room | Main level | 9'7'' x 10'8'' |
| Kitchen | Main level | 16'7'' x 10'8'' |
| Living room | Main level | 22'10'' x 12'1'' |
| Other | Main level | 15'8'' x 3'1'' |
| 3pc Bathroom | Main level | 7'10'' x 10'8'' |
| Bedroom | Main level | 10'0'' x 10'6'' |
| Primary Bedroom | Main level | 12'8'' x 10'6'' |
| Bedroom | Main level | 11'9'' x 10'8'' |
Amanda Tak
(250) 801-4322
Vantage West Realty Inc.
(250) 717-3133
The property information on this website is derived from the Canadian Real Estate Association''s Data Distribution Facility (DDF®). DDF® references real estate listings held by various brokerage firms and franchisees. The accuracy of information is not guaranteed and should be independently verified. The trademarks REALTOR®, REALTORS® and the REALTOR® logo are controlled by The Canadian Real Estate Association (CREA) and identify real estate professionals who are members of CREA. The trademarks MLS®, Multiple Listing Service® and the associated logos are owned by CREA and identify the quality of services provided by real estate professionals who are members of CREA.
Listing data last updated date: 2025-11-16 03:22:13
