Single Family
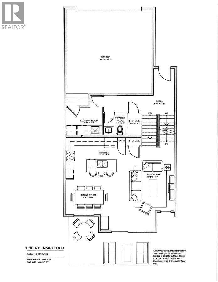
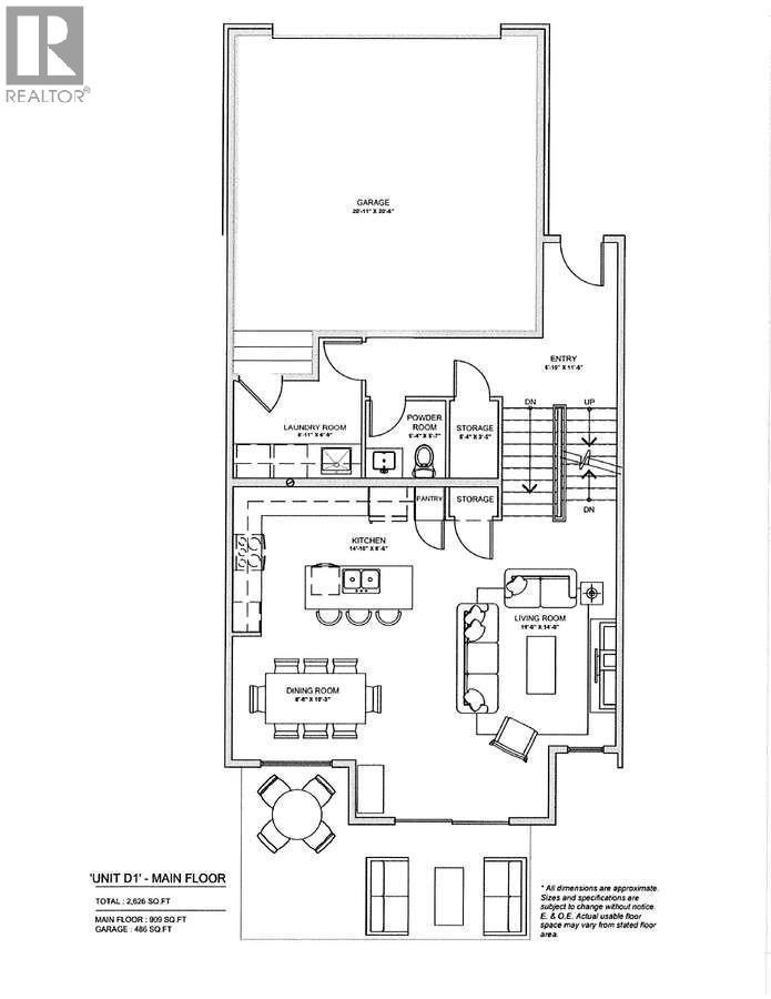
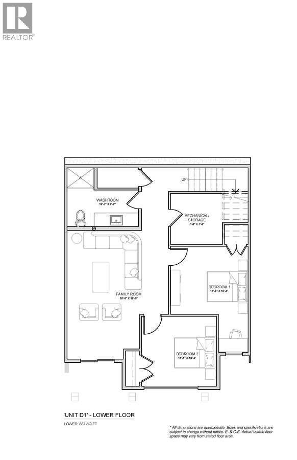
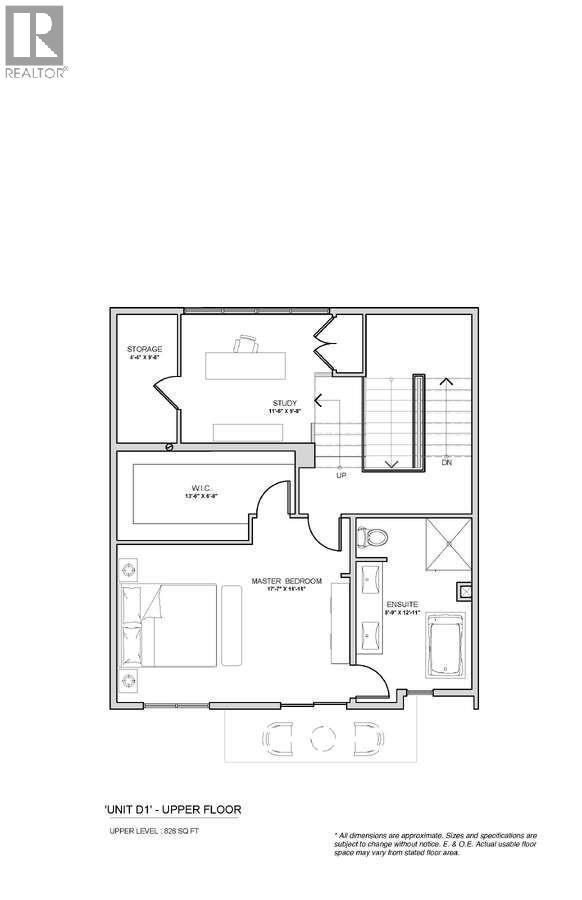
For more information, please click Brochure button. Discover Unit 43 – The Elderberry Plan at Pondside Landing. Experience 2,626 sq. ft. of bright, contemporary living in this stunning interior townhouse, finished in the sought-after Modern Farmhouse colour scheme. One of the last homes eligible for the GST incentive, this residence offers direct pond views and exceptional natural light throughout. The split-level design creates a spacious, functional layout featuring 3 bedrooms, 3 bathrooms, and a study. Enjoy three distinct outdoor spaces: a large deck off the main level, a private balcony from the primary suite (complete with 5-piece ensuite and walk-in closet), and a covered patio extending from the walkout basement. The main floor boasts an open-concept living area with a cozy gas fireplace, while the lower level includes two bright bedrooms and a family room that opens to the patio. The side-by-side double garage provides convenient access to a thoughtfully designed laundry room. Ceiling heights vary from 9' in the basement, 10' on the main floor, and 8' in the upper bedroom, reaching up to 11' in the study—enhancing the sense of space and light. Located just 10 minutes from downtown Kelowna and the airport, Pondside Landing offers a peaceful yet connected lifestyle surrounded by trails, ponds, and future community amenities, including Wilden Market Square and Wilden Elementary School. All measurements are approximate. (id:6769)
Subarea
Wilden
Lot
0.03
Year Built
2024
Sewer
Municipal sewage system
Flooring
Carpeted,Hardwood
Parking Type
2
| Room | Floor | Dimension |
|---|---|---|
| Loft | Second level | 11'6'' x 9'8'' |
| Storage | Second level | 4'4'' x 9'8'' |
| Primary Bedroom | Second level | 17'7'' x 11'11'' |
| Utility room | Lower level | 7'8'' x 7'6'' |
| 3pc Bathroom | Lower level | Measurements not available |
| Family room | Lower level | 10'9'' x 19'0'' |
| Bedroom | Lower level | 11'6'' x 10'4'' |
| Bedroom | Lower level | 11'1'' x 10'4'' |
| Kitchen | Main level | 14'10'' x 8'6'' |
| Living room | Main level | 19'0'' x 14'0'' |
| Dining room | Main level | 8'8'' x 10'3'' |
| Laundry room | Main level | 8'11'' x 6'9'' |
| 2pc Bathroom | Main level | Measurements not available |
| Storage | Main level | 5'4'' x 3'5'' |
| Foyer | Main level | 6'10'' x 11'6'' |
| 5pc Ensuite bath | Main level | Measurements not available |
Darya Pfund
(888) 323-1998
Easy List Realty
(888) 323-1998
The property information on this website is derived from the Canadian Real Estate Association''s Data Distribution Facility (DDF®). DDF® references real estate listings held by various brokerage firms and franchisees. The accuracy of information is not guaranteed and should be independently verified. The trademarks REALTOR®, REALTORS® and the REALTOR® logo are controlled by The Canadian Real Estate Association (CREA) and identify real estate professionals who are members of CREA. The trademarks MLS®, Multiple Listing Service® and the associated logos are owned by CREA and identify the quality of services provided by real estate professionals who are members of CREA.
Listing data last updated date: 2026-03-09 01:54:27
