Single Family
Welcome to 588 McCurdy Road, a bright and spacious end-unit townhome situated on a large corner lot in the heart of North Rutland. Step inside to find a warm and inviting main level featuring a functional open layout, plenty of natural light, and a comfortable living area that flows easily into the dining space and kitchen. The kitchen offers great counter space, a breakfast bar & an open view of the fenced backyard, perfect for keeping an eye on kids or pets while you cook. Downstairs, the walkout basement opens directly into your private, fully fenced yard, a rare find at this price point! Whether it’s backyard BBQs, a garden space, or a safe spot for your pets, this yard can handle it all. Plus, with no dog size restrictions, your big furry family members are more than welcome. The renovated full bathroom, updated finishes, and flexibility of two levels of living space are ideal for families, roommates, or guests. This small, well-managed complex offers low strata fees, two parking stalls, and plenty of green space to enjoy. The location is unbeatable, just a 5-minute walk to Pearson Elementary, close to middle and secondary schools, the bus route, shopping, restaurants, and recreation. Whether you’re looking for your first home, a smart investment, or a comfortable downsizing option. Move-in ready with quick possession available, this home delivers unbeatable value, space, and lifestyle. (id:6769)
Subarea
Rutland North
Lot
0.4
Year Built
1980
Sewer
Municipal sewage system
Parking Type
2
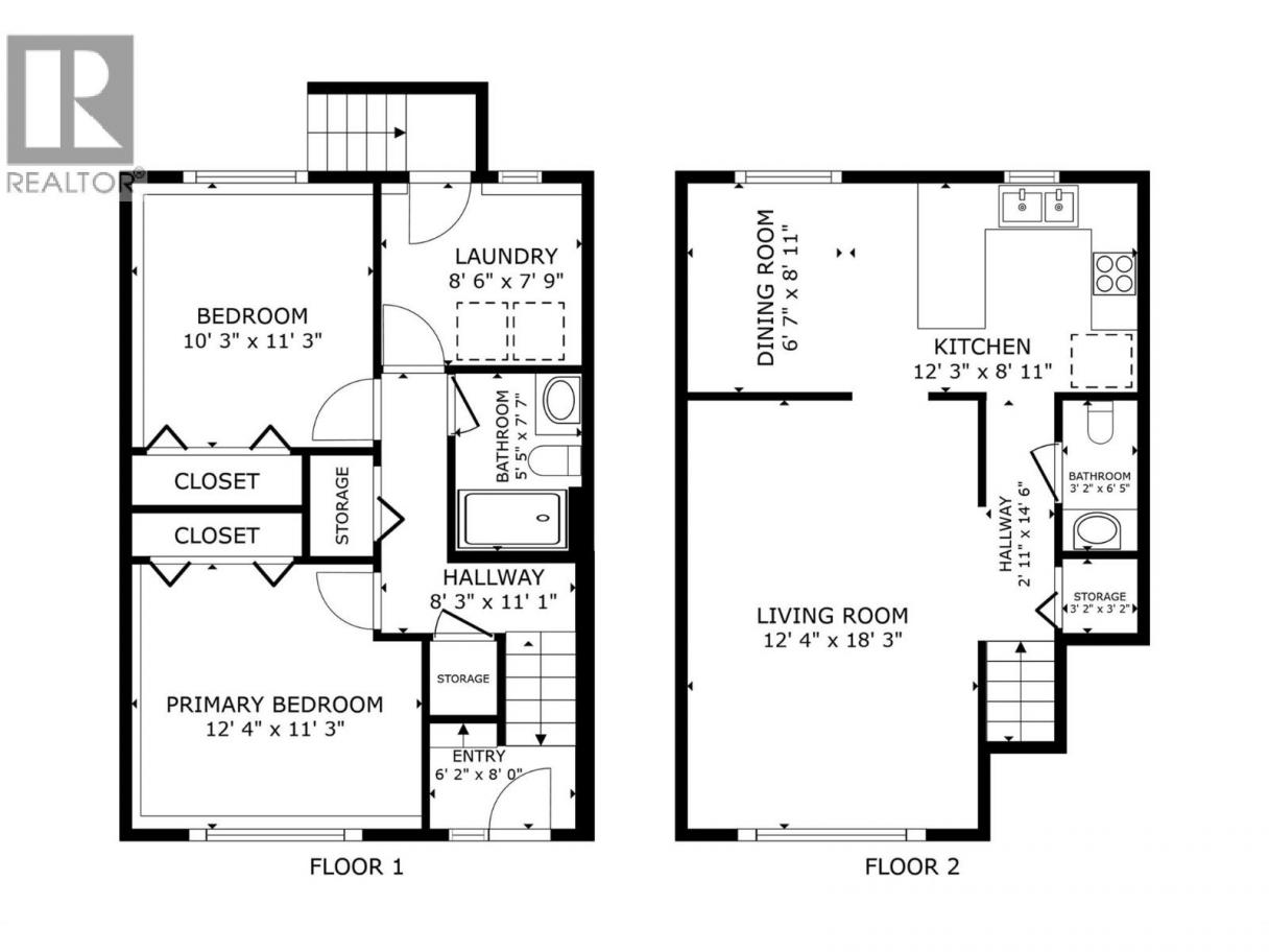
| Room | Floor | Dimension |
|---|---|---|
| Other | Basement | 8'0'' x 6'2'' |
| 4pc Bathroom | Basement | 7'7'' x 5'5'' |
| Laundry room | Basement | 8'6'' x 7'9'' |
| Bedroom | Basement | 11'3'' x 10'3'' |
| Primary Bedroom | Basement | 12'4'' x 11'3'' |
| Partial bathroom | Main level | 6'5'' x 3'2'' |
| Storage | Main level | 3'2'' x 3'2'' |
| Dining room | Main level | 8'11'' x 6'7'' |
| Living room | Main level | 18'3'' x 12'4'' |
| Kitchen | Main level | 12'3'' x 8'11'' |
Brittany Loney
(250) 801-0636
Century 21 Assurance Realty Ltd
(250) 869-0101
The property information on this website is derived from the Canadian Real Estate Association''s Data Distribution Facility (DDF®). DDF® references real estate listings held by various brokerage firms and franchisees. The accuracy of information is not guaranteed and should be independently verified. The trademarks REALTOR®, REALTORS® and the REALTOR® logo are controlled by The Canadian Real Estate Association (CREA) and identify real estate professionals who are members of CREA. The trademarks MLS®, Multiple Listing Service® and the associated logos are owned by CREA and identify the quality of services provided by real estate professionals who are members of CREA.
Listing data last updated date: 2026-01-07 02:40:30
