Single Family
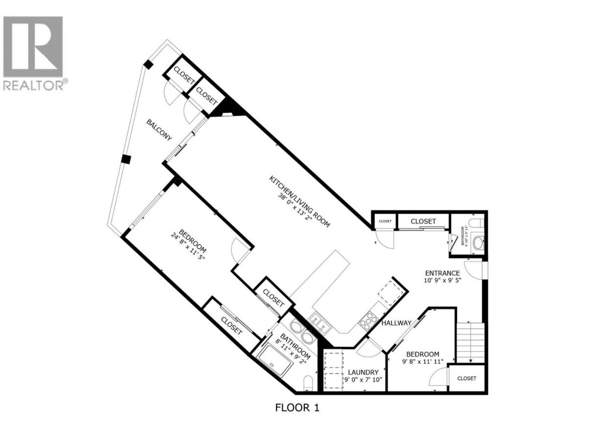
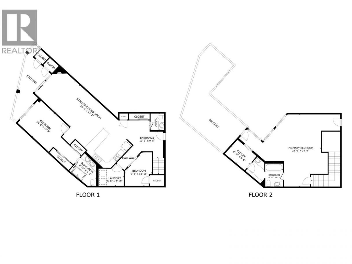
Stunning top-floor Luxury Penthouse loft at Water's Edge offering over 2,100 sq ft of luxury living with breathtaking views of Mission Creek and steps away from Okanagan Lake. The main level features soaring 23 ft ceilings, floor-to-ceiling windows and a modern kitchen beatifully finished with top of the line appliances including a gas range and plenty of counter and cabinet space. Perfect for cooking and entertaining. The main level includes a spacious bedroom with 9 ft ceilings and an ensuite with heated floors, along with a private den and a large laundry room. Upstairs, the loft-level primary suite includes its own private entrance and showcases a very unique and bright layout with full length windows showcasing the spectacular views. Primary suite also includes a walk-in closet and a spa-inspired 5-piece ensuite. Enjoy outdoor living on two generous decks, perfect for relaxing or entertaining while enjoying the beautiful view of Mission Creek and the Gorgeous Okanagan Valley. Resort-style amenities include an outdoor pool, hot tub, putting green, gym and recreation room with a full kitchen. Enclosed parking stall and secure storage included. Steps to the Greenway Trail, Truswell Park, beaches. Minutes to dining, shopping, and all the best the Lower Mission has to offer. (id:6769)
Subarea
Lower Mission
Lot
0
Year Built
2012
Sewer
Municipal sewage system
Flooring
Carpeted,Ceramic Tile,Hardwood
Parking Type
1
| Room | Floor | Dimension |
|---|---|---|
| Primary Bedroom | Second level | 25'0'' x 25'8'' |
| Full bathroom | Second level | '' x '' |
| 2pc Bathroom | Main level | Measurements not available |
| Laundry room | Main level | 9'0'' x 7'10'' |
| Den | Main level | 11'11'' x 9'8'' |
| 4pc Ensuite bath | Main level | Measurements not available |
| Bedroom | Main level | 24'8'' x 11'6'' |
| Kitchen | Main level | 10'0'' x 11'0'' |
| Dining room | Main level | 12'0'' x 13' |
| Living room | Main level | 16'0'' x 13'0'' |
Lane Lovig
(250) 212-6374
Century 21 Assurance Realty Ltd
(250) 869-0101
The property information on this website is derived from the Canadian Real Estate Association''s Data Distribution Facility (DDF®). DDF® references real estate listings held by various brokerage firms and franchisees. The accuracy of information is not guaranteed and should be independently verified. The trademarks REALTOR®, REALTORS® and the REALTOR® logo are controlled by The Canadian Real Estate Association (CREA) and identify real estate professionals who are members of CREA. The trademarks MLS®, Multiple Listing Service® and the associated logos are owned by CREA and identify the quality of services provided by real estate professionals who are members of CREA.
Listing data last updated date: 2026-03-11 02:37:36
