Single Family
Modern 6-bed, 6-bath home suited home in Black Mountain's private Mine Hill Lane! The main floor of this remarkable home features an airy open-concept layout, grand vaulted ceilings, large picture windows featuring stunning views sweeping East of Kirschner mountain to Okanagan Lake, cozy fireplace, elegant kitchen , large island with bar seating, beautiful quartz counters, tons of cabinets, spacious master suite abundance of south exposure windows with doors leading to the and wrap around patio, spa-like ensuite with glass shower, free-standing soaker tub, well-appointed main bathroom, office and extra bedrooms. 3-car garage & access to the large covered patio with glass railing to showcase those remarkable South and West facing views. The self-contained, legal lower-level suite is every bit as stunning as the main floors featuring 1-bedroom, 1-bathroom, laundry, access to yard & covered patio. There is also an additional 2-bedroom nanny suite downstairs for multi-generational living! (id:6769)
Subarea
Black Mountain
Lot
0.4
Year Built
2018
Sewer
Municipal sewage system
Parking Type
3
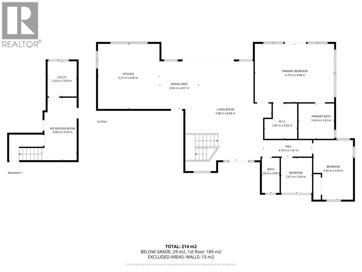
| Room | Floor | Dimension |
|---|---|---|
| 4pc Bathroom | Second level | 9'3'' x 5'1'' |
| Bedroom | Second level | 9'3'' x 12'6'' |
| Kitchen | Second level | 10'3'' x 16'4'' |
| Living room | Second level | 7'6'' x 16'4'' |
| Recreation room | Basement | 19'5'' x 25'1'' |
| 3pc Bathroom | Basement | 6'11'' x 10'9'' |
| Bedroom | Basement | 13'2'' x 12'11'' |
| Bedroom | Basement | 9'9'' x 11'4'' |
| 4pc Ensuite bath | Basement | 10'8'' x 5'0'' |
| Bedroom | Basement | 16'2'' x 16'0'' |
| Family room | Basement | 19'1'' x 23'4'' |
| 3pc Bathroom | Main level | 9'7'' x 4'10'' |
| Den | Main level | 9'7'' x 8'10'' |
| Bedroom | Main level | 16'5'' x 11'1'' |
| 4pc Ensuite bath | Main level | 9'9'' x 9'10'' |
| Primary Bedroom | Main level | 16'0'' x 21'7'' |
| Kitchen | Main level | 18'1'' x 19'4'' |
| Living room | Main level | 20'0'' x 27'2'' |
Joe White
(250) 300-0449
Coldwell Banker Horizon Realty
(250) 860-7500
The property information on this website is derived from the Canadian Real Estate Association''s Data Distribution Facility (DDF®). DDF® references real estate listings held by various brokerage firms and franchisees. The accuracy of information is not guaranteed and should be independently verified. The trademarks REALTOR®, REALTORS® and the REALTOR® logo are controlled by The Canadian Real Estate Association (CREA) and identify real estate professionals who are members of CREA. The trademarks MLS®, Multiple Listing Service® and the associated logos are owned by CREA and identify the quality of services provided by real estate professionals who are members of CREA.
Listing data last updated date: 2026-01-19 02:47:40
