Single Family
Priced nearly $100k BELOW ASSESSED! Welcome to a home that is as practical as it is full of potential. Sitting on a rare nearly quarter-acre lot with laneway access, this 2-bedroom, 1.5 bathroom home is move-in ready and offers plenty of room to grow - or to park everything from your RV to your snowbird luggage. The detached shop is complete with power, water, sewer and a bathroom, and ready for all your ideas (man cave or student accommodation?) The home also has an attached double garage make it a dream setup for hobbyists, storage needs, or future projects. Inside, you’ll find a layout designed for comfort and accessibility, with thoughtful features to accommodate all stages of life. An updated kitchen and main bathroom and fresh paint make this home move in ready! Two large bedrooms, an ensuite, a main floor bath with a walk in shower, and a large living room make this a very functional layout! The flat yard is perfect for kids at play or for storing the “big toys” you don’t want on the street. Investors will appreciate the long-term holding potential in a safer, well-connected neighborhood where schools, parks, and transit are just a short stroll away. Whether you’re a first-time buyer, investor, or seasonal resident, this property is a smart townhouse alternative with a lot more breathing room. Ready when you are! (id:6769)
Subarea
Rutland North
Lot
0.24
Year Built
1990
Sewer
Municipal sewage system
Parking Type
5
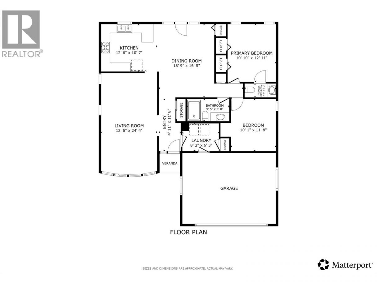
| Room | Floor | Dimension |
|---|---|---|
| Partial bathroom | Second level | Measurements not available |
| Laundry room | Main level | 8'2'' x 6'3'' |
| Bedroom | Main level | 10'1'' x 11'8'' |
| 3pc Bathroom | Main level | 9'5'' x 5'0'' |
| 2pc Ensuite bath | Main level | 7'0'' x 3'2'' |
| Primary Bedroom | Main level | 10'10'' x 12'11'' |
| Foyer | Main level | 4'11'' x 11'8'' |
| Dining room | Main level | 18'9'' x 16'5'' |
| Kitchen | Main level | 12'6'' x 10'7'' |
| Living room | Main level | 12'6'' x 24'4'' |
Darcy Fiander
(250) 826-9196
Vantage West Realty Inc.
(250) 717-3133
The property information on this website is derived from the Canadian Real Estate Association''s Data Distribution Facility (DDF®). DDF® references real estate listings held by various brokerage firms and franchisees. The accuracy of information is not guaranteed and should be independently verified. The trademarks REALTOR®, REALTORS® and the REALTOR® logo are controlled by The Canadian Real Estate Association (CREA) and identify real estate professionals who are members of CREA. The trademarks MLS®, Multiple Listing Service® and the associated logos are owned by CREA and identify the quality of services provided by real estate professionals who are members of CREA.
Listing data last updated date: 2025-11-26 03:25:22
