Single Family
Exceptional 3-bedroom, 3-bathroom home offers over 2,900 sq. ft. of thoughtfully designed living space overlooking the Tower Ranch golf course. The main level impresses with 10’ ceilings and expansive windows that flood the space with morning light. The open-concept living area includes a cozy fireplace, vaulted ceilings, and direct access to a spacious deck. The kitchen showcases marble countertops and stainless steel appliances, while the primary suite offers a walk-in closet and a luxurious ensuite with dual sinks. Downstairs, you’ll find two additional bedrooms, a full bathroom, a wet bar, ample storage opening to a generous green space. Surrounded by natural beauty, this property provides convenient access to hiking paths and a 43-acre community park, all while remaining close to downtown. North Pointe homeowners have access to a 10,000-square-foot Clubhouse that includes a pro shop, dining area, fitness center, and a residents' lounge equipped with a kitchen, large television, fireplace, and outdoor terrace. Enjoy the Tower Ranch lifestyle! The best part you can LOVE WHERE YOU LIVE with gardening, repairs and maintenance, including, roof, windows, siding and more done by the Strata. (id:6769)
Subarea
Rutland North
Lot
0
Year Built
2016
Sewer
Municipal sewage system
Flooring
Carpeted,Wood,Tile,Vinyl
Parking Type
4
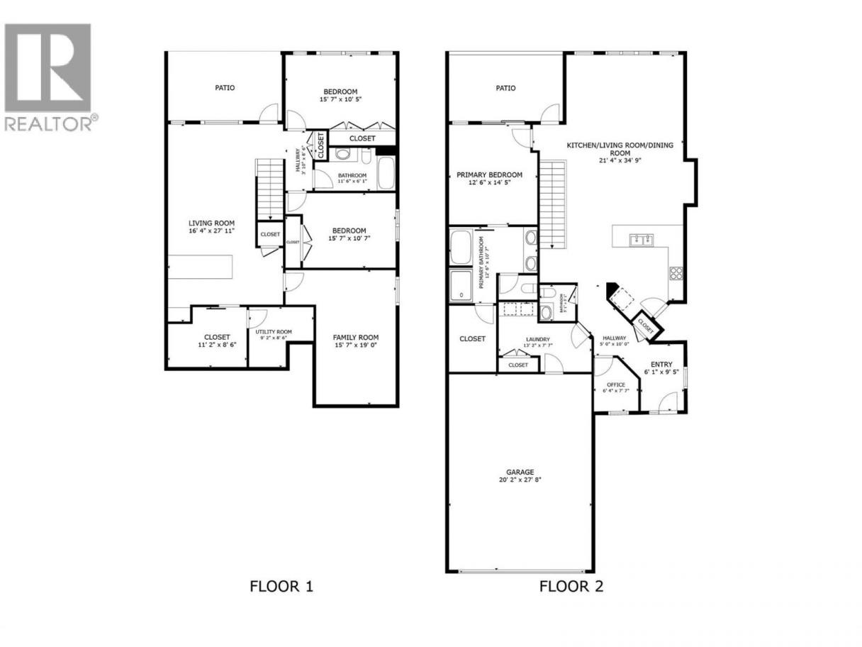
| Room | Floor | Dimension |
|---|---|---|
| Storage | Basement | 11'2'' x 8'6'' |
| Bedroom | Basement | 15'7'' x 10'7'' |
| Family room | Basement | 16'4'' x 27'11'' |
| Full bathroom | Basement | 11'6'' x 6'1'' |
| Bedroom | Basement | 15'7'' x 10'5'' |
| Workshop | Basement | 15'7'' x 19'0'' |
| Partial bathroom | Main level | Measurements not available |
| Office | Main level | 6'4'' x 7'7'' |
| Laundry room | Main level | 13'2'' x 7'7'' |
| 5pc Ensuite bath | Main level | 12'6'' x 10'7'' |
| Primary Bedroom | Main level | 12'6'' x 14'5'' |
| Living room | Main level | 16'1'' x 14'6'' |
| Dining room | Main level | 16'1'' x 9'8'' |
| Kitchen | Main level | 10'7'' x 13'0'' |
Joe Loucks
(250) 899-0575
RE/MAX Kelowna
(250) 717-5000
The property information on this website is derived from the Canadian Real Estate Association''s Data Distribution Facility (DDF®). DDF® references real estate listings held by various brokerage firms and franchisees. The accuracy of information is not guaranteed and should be independently verified. The trademarks REALTOR®, REALTORS® and the REALTOR® logo are controlled by The Canadian Real Estate Association (CREA) and identify real estate professionals who are members of CREA. The trademarks MLS®, Multiple Listing Service® and the associated logos are owned by CREA and identify the quality of services provided by real estate professionals who are members of CREA.
Listing data last updated date: 2025-11-16 03:40:07
