Single Family
Known as Asparagus Bay, this home is built to celebrate Okanagan life. Its 1.297 acres - nurtured into an award-winning water-wise garden - offer a 5000 plus square foot house designed by Architect Robert Turik to create ideal views, a roofline that honors the surrounding hillsides, access to outdoor living spaces, sunlight exposure, & privacy. Six bedrooms & four bathrooms total! Inside, the ceiling follows curved trusses varying from 12.5 feet to 20 feet high; the main south-facing windows ensure year-round sun; European tilt windows allow for extra airflow and cross breezes; & a bank of upper windows draw in the morning light. Upstairs, the kitchen is book-ended by living spaces, the master & ensuite both provide lake views, and a one bedroom suite offers privacy to guests. Every room provides seamless access to outside, including 1100+ square feet of patio space w/ stairs to another deck below. Downstairs offers two bedrooms and one bathroom, a kitchenette, access to outdoors, storage, and another roughed-in suite with kitchen and bathroom plumbing. Outside, walk down an accessible path (the old orchard-donkey path!) to 219 feet of lakeshore frontage with beach-entrance swimming and a private 130 foot dock built in 2018, and featuring both a three tonne hoist and parking for guests. The lot is bisected by Lakeshore Road, so landscaped uplands offer additional parking, a deer-fenced garden with fruit trees and berries, space for a workshop, and long-term development/subdivision potential. Walking distance to Cedar Creek Winery, Martin's Lane, waterfront parks, & more. (id:6769)
Subarea
Upper Mission
Lot
1.3
Year Built
2010
Sewer
Septic tank
Parking Type
12
| Room | Floor | Dimension |
|---|---|---|
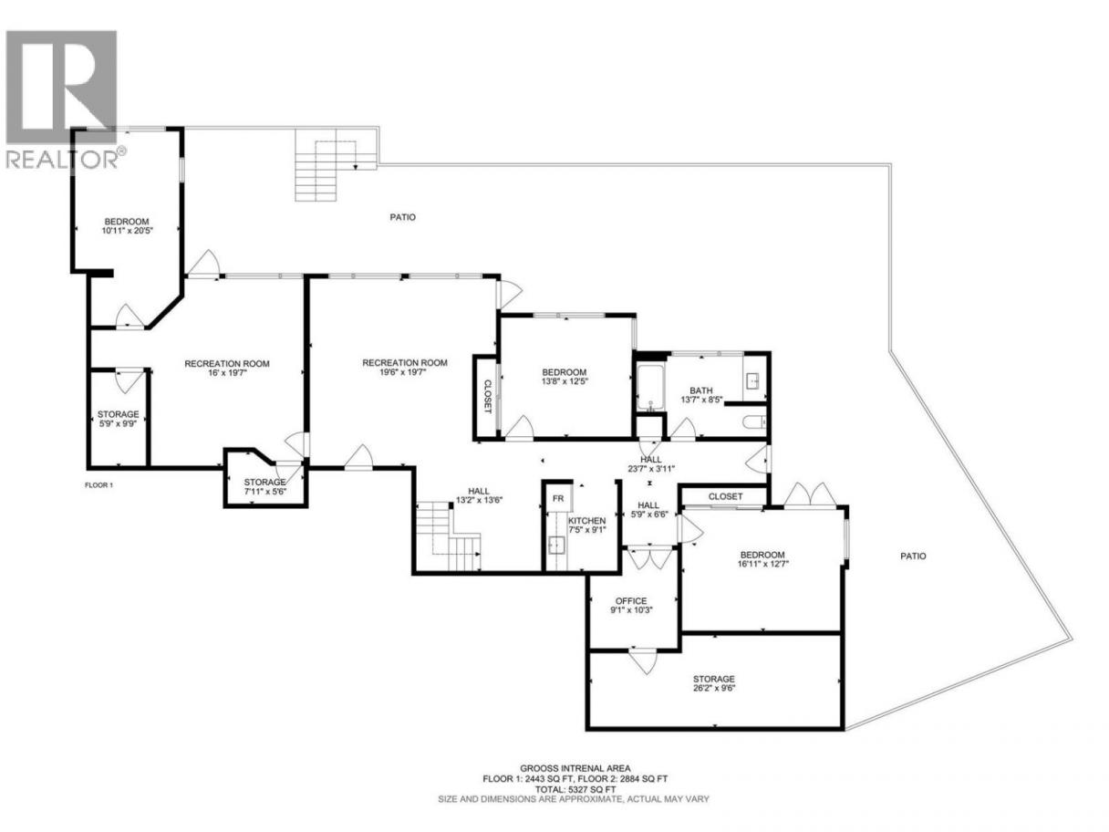
| Bedroom | Basement | 16'11'' x 12'7'' |
| Foyer | Basement | 5'9'' x 6'6'' |
| 3pc Bathroom | Basement | 13'7'' x 8'5'' |
| Foyer | Basement | 23'7'' x 3'11'' |
| Kitchen | Basement | 7'5'' x 9'1'' |
| Bedroom | Basement | 13'8'' x 12'5'' |
| Foyer | Basement | 13'2'' x 13'6'' |
| Recreation room | Basement | 19'6'' x 19'7'' |
| Bedroom | Basement | 10'11'' x 20'5'' |
| Storage | Basement | 7'11'' x 5'6'' |
| Storage | Basement | 5'9'' x 9'9'' |
| Recreation room | Basement | 16'0'' x 19'7'' |
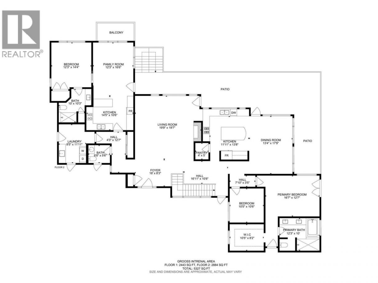
| 3pc Bathroom | Main level | 10'0'' x 10'3'' |
| Bedroom | Main level | 12'3'' x 14'4'' |
| Family room | Main level | 12'3'' x 16'6'' |
| Kitchen | Main level | 14'5'' x 10'6'' |
| Laundry room | Main level | 8'5'' x 11'11'' |
| 2pc Bathroom | Main level | 6'8'' x 5'6'' |
| Foyer | Main level | 4'3'' x 12'7'' |
Scott Marshall
(250) 470-2388
Sotheby's International Realty Canada
(250) 469-9547
The property information on this website is derived from the Canadian Real Estate Association''s Data Distribution Facility (DDF®). DDF® references real estate listings held by various brokerage firms and franchisees. The accuracy of information is not guaranteed and should be independently verified. The trademarks REALTOR®, REALTORS® and the REALTOR® logo are controlled by The Canadian Real Estate Association (CREA) and identify real estate professionals who are members of CREA. The trademarks MLS®, Multiple Listing Service® and the associated logos are owned by CREA and identify the quality of services provided by real estate professionals who are members of CREA.
Listing data last updated date: 2025-11-22 03:38:04
