Single Family
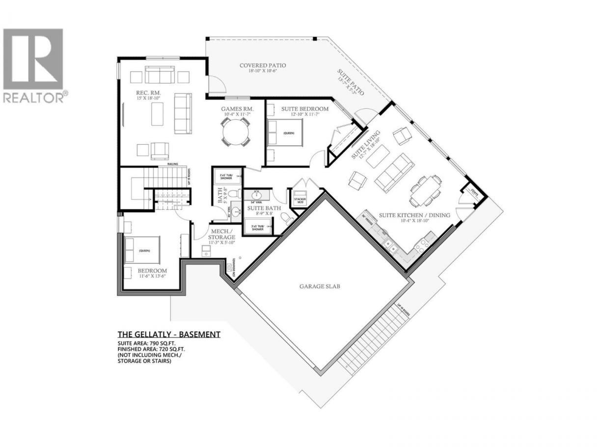
BIG LAKE AND CITY VIEWS! To be built. Discover the Gellatly Plan, a 3,255 sq.ft. rancher with a walk-out basement and a 1-bedroom legal suite at The Trails. The main level welcomes you with 10’ ceilings, a bright great room centred on a gas fireplace, and oversized windows showcasing sweeping city and lake views. The chef’s kitchen offers a large island, quartz countertops, and a walk-in butler’s pantry, flowing into the dining area with access to a covered deck. The primary suite features a spa-inspired 5PC ensuite with double vanity, glass shower, private lavatory, and a custom walk-in closet. Downstairs, the walkout basement includes a spacious rec/games room opening to a covered patio, plus an additional bedroom and full bath—ideal for guests or a home office. The 1-bedroom legal suite comes complete with a full kitchen, living room, 4PC bath, in-suite laundry, and separate entrance, providing flexible options for family or rental income. At The Trails, you’ll enjoy direct access to hiking and biking routes, two community parks, and panoramic views. Glen Canyon Park, Gellatly Bay’s waterfront, wineries, schools, golf, and West Kelowna’s best beaches are all just minutes away. Don’t miss this opportunity to secure a brand-new home in one of West Kelowna’s most sought-after neighbourhoods. (id:6769)
Subarea
Glenrosa
Lot
0.22
Year Built
2026
Sewer
Municipal sewage system
Flooring
Carpeted,Ceramic Tile,Vinyl
Parking Type
4
| Room | Floor | Dimension |
|---|---|---|
| Games room | Basement | 10'4'' x 11'7'' |
| Recreation room | Basement | 15' x 18'10'' |
| 4pc Bathroom | Basement | 8'9'' x 8' |
| Storage | Basement | 11'3'' x 5'10'' |
| Bedroom | Basement | 11'6'' x 13'6'' |
| 5pc Ensuite bath | Main level | 8'5'' x 14'7'' |
| Primary Bedroom | Main level | 14'2'' x 12'5'' |
| Laundry room | Main level | 15'6'' x 6'6'' |
| Other | Main level | 7'7'' x 6'11'' |
| Dining room | Main level | 14'6'' x 11'10'' |
| Great room | Main level | 15'11'' x 18'11'' |
| Kitchen | Main level | 15'11'' x 9'8'' |
| 3pc Bathroom | Main level | 6' x 9' |
| Bedroom | Main level | 10'11'' x 11'9'' |
| Foyer | Main level | 6'4'' x 9' |
| Kitchen | Additional Accommodation | 10'4'' x 18'10'' |
| Living room | Additional Accommodation | 12'7'' x 18'10'' |
| Primary Bedroom | Additional Accommodation | 12'10'' x 11'7'' |
| Full bathroom | Additional Accommodation | 8'9'' x 8' |
Audrey Houghton
(250) 878-2777
RE/MAX Kelowna
(250) 717-5000
The property information on this website is derived from the Canadian Real Estate Association''s Data Distribution Facility (DDF®). DDF® references real estate listings held by various brokerage firms and franchisees. The accuracy of information is not guaranteed and should be independently verified. The trademarks REALTOR®, REALTORS® and the REALTOR® logo are controlled by The Canadian Real Estate Association (CREA) and identify real estate professionals who are members of CREA. The trademarks MLS®, Multiple Listing Service® and the associated logos are owned by CREA and identify the quality of services provided by real estate professionals who are members of CREA.
Listing data last updated date: 2025-11-16 03:33:25
