Single Family
Updated family home with a self contained mortgage helper in a quiet neighbourhood. Gorgeous vaulted architechture with tongue in groove finishing makes this a unique home - airy and open. Three bedrooms up including a primary with cheater ensuite. Great room plan with open kitchen/dining/living room area. Huge bonus/ flex room with cozy gas fireplace overlooking the back yard; perfect for a family room, home office, or gym. Studio suite down that could be a one bedroom or reopened to the main home if preferred. Large, grassy, fenced back yard. Private, partially covered deck with mountain views. Carport, loads of parking. 10 x 15 secure, dry, under-deck shop/storage. MF1 zoning. Walking distance to parks, schools, transit and downtown! Perfect for a family, investor, or both! (id:6769)
Subarea
Glenmore
Lot
0.17
Year Built
1972
Sewer
Municipal sewage system
Flooring
Ceramic Tile,Laminate
Parking Type
5
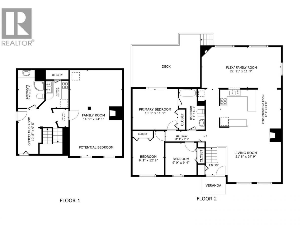
| Room | Floor | Dimension |
|---|---|---|
| Kitchen | Basement | 6'5'' x 7'8'' |
| Other | Basement | 10'8'' x 9'5'' |
| Full bathroom | Basement | 6'5'' x 7'8'' |
| Family room | Basement | 14'9'' x 24'1'' |
| Full bathroom | Main level | 5'1'' x 11'9'' |
| Bedroom | Main level | 9'4'' x 9'0'' |
| Bedroom | Main level | 12'9'' x 9'1'' |
| Primary Bedroom | Main level | 13'1'' x 11'9'' |
| Other | Main level | 22'11'' x 11'9'' |
| Living room | Main level | 21'8'' x 24'9'' |
| Kitchen | Main level | 10'8'' x 17'6'' |
Maureen Yakimchuk
(250) 870-2510
Century 21 Assurance Realty Ltd
(250) 869-0101
The property information on this website is derived from the Canadian Real Estate Association''s Data Distribution Facility (DDF®). DDF® references real estate listings held by various brokerage firms and franchisees. The accuracy of information is not guaranteed and should be independently verified. The trademarks REALTOR®, REALTORS® and the REALTOR® logo are controlled by The Canadian Real Estate Association (CREA) and identify real estate professionals who are members of CREA. The trademarks MLS®, Multiple Listing Service® and the associated logos are owned by CREA and identify the quality of services provided by real estate professionals who are members of CREA.
Listing data last updated date: 2026-02-22 02:22:28
