Single Family
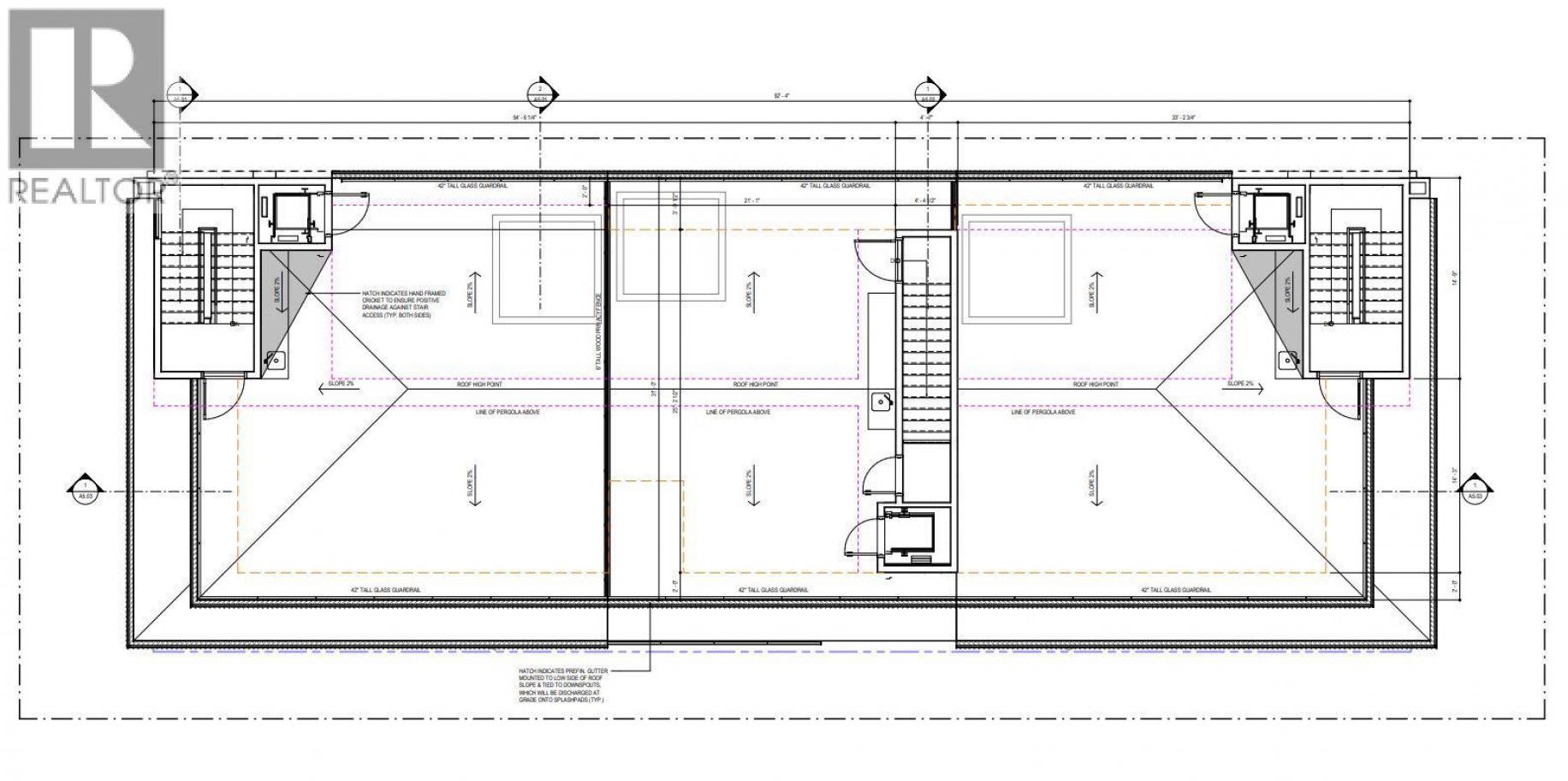
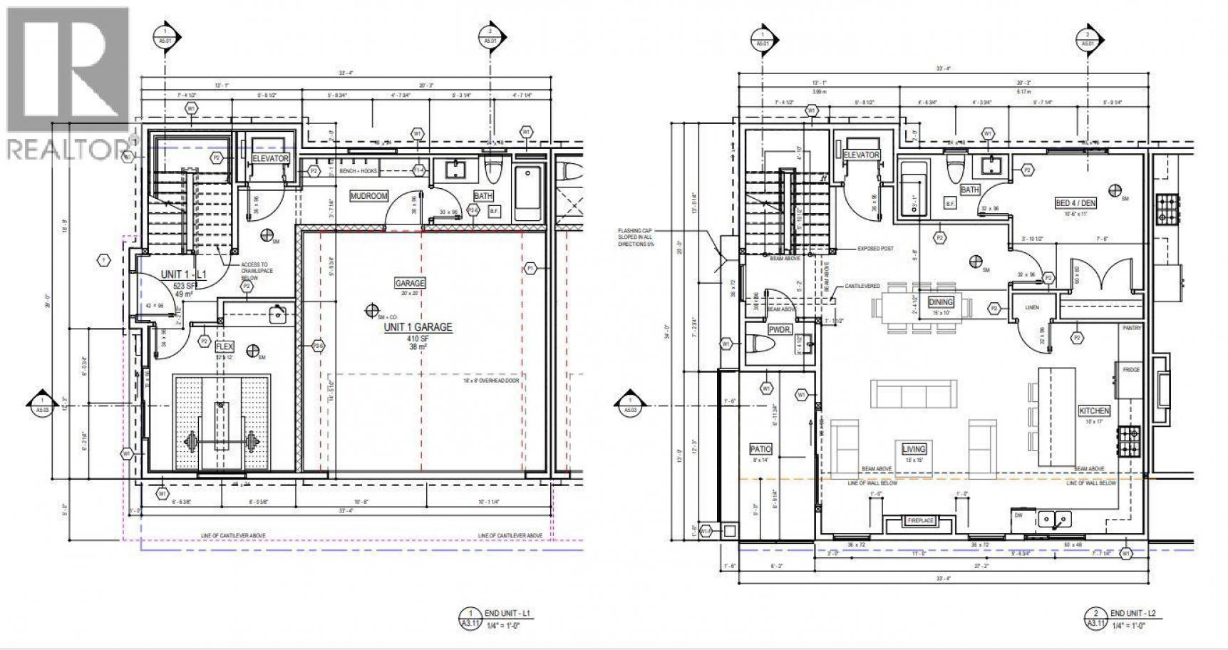
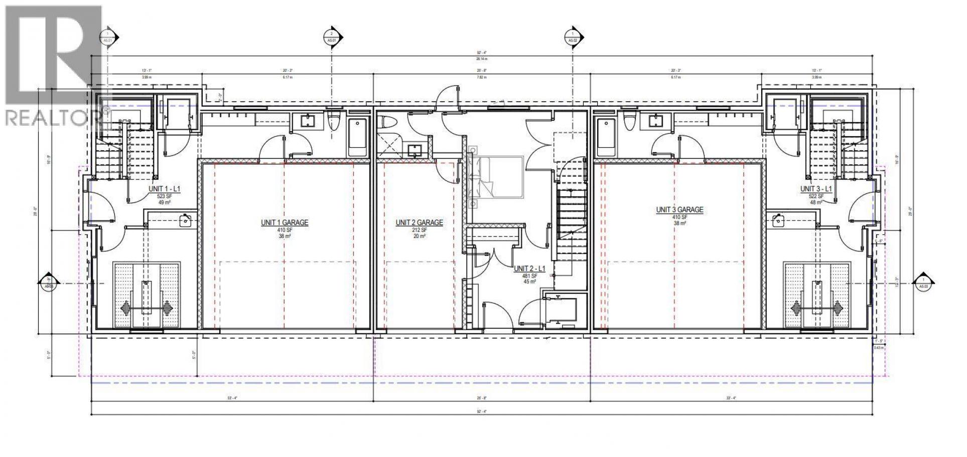
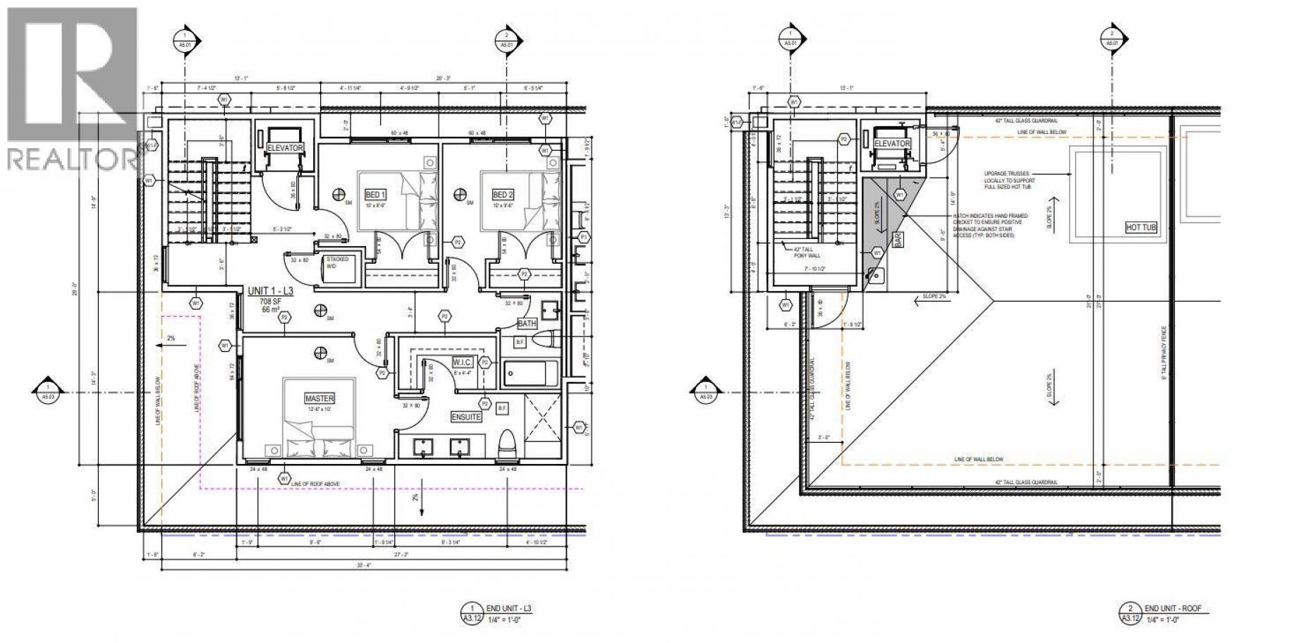
Introducing the pinnacle of luxury living!! This brand-new, spacious high-end townhome boasts 5 bedrooms, 5 bathrooms PLUS roof top deck! 3 floors of top quality finishing, every detail has been meticulously crafted. The gourmet kitchen boasts granite countertops, stainless steel appliances and island, ideal for entertaining. Exposed beams create a unique architectural statement by blending rustic charm with modern living. Gather with your guests on the roof top deck with easy access by elevator from the main floor right to the top. Take in the breathtaking lake, mountain and city view! Have your family bedrooms together on the 3rd floor. The primary bedroom includes a generous size ensuite with double vanity, custom tile shower and walk in closet. 2 additional bedrooms and 1 bathroom. Level 1 and 2 have additional flex/bedrooms and bathrooms ready for the extra guests or use the space for yourself! Additional features include laundry on the main floor, built-in Sonos speakers throughout the home and bar sink on the roof top deck. Take a short stroll to the lake and beautiful Sarsons Beach Park where you can bring your kayak, paddle board or just soak up the sun-kissed lake life. Located in the sought after Lower Mission area close to shops, restaurants, breweries and multiple outdoor trails, this stunning townhome is situated in a prime location! Buy now and personalize your dream home with your choice of finishing. Plus GST (id:6769)
Subarea
Lower Mission
Lot
0
Year Built
2025
Sewer
Municipal sewage system
Parking Type
2
| Room | Floor | Dimension |
|---|---|---|
| 2pc Bathroom | Second level | Measurements not available |
| Full bathroom | Second level | Measurements not available |
| Bedroom | Second level | 11' x 10'6'' |
| Kitchen | Second level | 17' x 10' |
| Dining room | Second level | 15' x 10' |
| Living room | Second level | 15' x 15' |
| Full bathroom | Third level | Measurements not available |
| Bedroom | Third level | 10' x 9'6'' |
| Bedroom | Third level | 10' x 9'6'' |
| Full ensuite bathroom | Third level | Measurements not available |
| Primary Bedroom | Third level | 12'6'' x 10' |
| Full bathroom | Main level | Measurements not available |
| Bedroom | Main level | 12' x 12' |
Wes Jones
(250) 215-1084
RE/MAX Kelowna
(250) 717-5000
The property information on this website is derived from the Canadian Real Estate Association''s Data Distribution Facility (DDF®). DDF® references real estate listings held by various brokerage firms and franchisees. The accuracy of information is not guaranteed and should be independently verified. The trademarks REALTOR®, REALTORS® and the REALTOR® logo are controlled by The Canadian Real Estate Association (CREA) and identify real estate professionals who are members of CREA. The trademarks MLS®, Multiple Listing Service® and the associated logos are owned by CREA and identify the quality of services provided by real estate professionals who are members of CREA.
Listing data last updated date: 2025-11-16 03:21:11
