Single Family
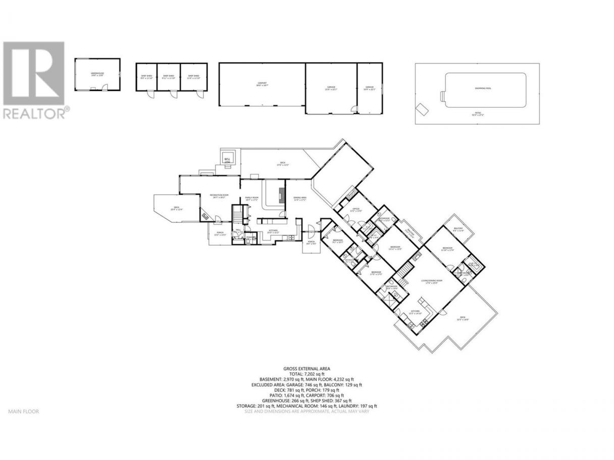
Rare and private BX acreage on a dead end road offered for sale with Okanagan valley views from all angles and features an attached secondary dwelling plus in-law suite just minutes to Vernon. With the 2 dwellings + in-law suite, your multi-generational and income generating options are fantastic. From long term rentals to short term (bylaw dependent) or even event hosting this property can accommodate many income generating ideas. The property has over 4 acres of usable fenced land and an in-ground pool with stunning valley views as you enjoy the Okanagan weather. Plenty of parking for your RV, toys and more, with a detached triple garage and triple carport. Main house is approximately 5,500' and offers 6 bedrooms + den, and 5 bathrooms. Vaulted ceilings, large kitchen, plenty of windows for natural light, multiple fireplaces and fantastic spacious living areas for hosting. Walk out to the large deck to enjoy the beautiful views. Secondary attached home (added later) is approximately 2,000' with 2 bedrooms (option for 3rd) and 3 bathrooms and a great covered deck and double carport for totally separate living. The in-law suite in the main house is approximately 750' with 1 bedroom and 1 bathroom with separate entrance. Property has been very well maintained with too many upgrades to list but include metal roof, recently replaced windows and doors, decking, garage roof, flooring, and much more. (Not listed in the ALR.) (id:6769)
Subarea
North BX
Lot
4.45
Year Built
1981
Sewer
Septic tank
Parking Type
3
| Room | Floor | Dimension |
|---|---|---|
| Full ensuite bathroom | Basement | Measurements not available |
| Bedroom | Basement | 10'8'' x 15'3'' |
| Gym | Basement | 18' x 18' |
| Laundry room | Basement | 5'8'' x 10'7'' |
| Bedroom | Basement | 17' x 17' |
| Bedroom | Basement | 13'3'' x 15'8'' |
| Full bathroom | Basement | Measurements not available |
| Full bathroom | Basement | Measurements not available |
| Full ensuite bathroom | Basement | Measurements not available |
| Bedroom | Basement | 13'3'' x 14'9'' |
| Kitchen | Basement | 25'5'' x 18'10'' |
| Storage | Basement | 9' x 11' |
| Laundry room | Basement | 17'4'' x 12'2'' |
| Partial bathroom | Main level | Measurements not available |
| Full ensuite bathroom | Main level | Measurements not available |
| Bedroom | Main level | 11'10'' x 17'4'' |
| Full bathroom | Main level | Measurements not available |
| Living room | Main level | 17' x 25'9'' |
| Kitchen | Main level | 13'3'' x 14'10'' |
Justin Vanderham
(250) 307-7537
3 Percent Realty Inc.
(250) 503-2246
The property information on this website is derived from the Canadian Real Estate Association''s Data Distribution Facility (DDF®). DDF® references real estate listings held by various brokerage firms and franchisees. The accuracy of information is not guaranteed and should be independently verified. The trademarks REALTOR®, REALTORS® and the REALTOR® logo are controlled by The Canadian Real Estate Association (CREA) and identify real estate professionals who are members of CREA. The trademarks MLS®, Multiple Listing Service® and the associated logos are owned by CREA and identify the quality of services provided by real estate professionals who are members of CREA.
Listing data last updated date: 2025-11-16 03:45:06
