$ 1,649,000
–
1531 Olive Pond Place
This listing presented by
Dallas Markovina Personal Real Estate Corporation
. Contact Dallas by phone:
250-870-6145
or email direct
here
.
Overview
Map & Nearby
Street View
Print
Download
Contact Agent
Listing Info
Area:
Kelowna
Property Type:
Single Family
Ownership:
Freehold
MLS® Number:
10378117
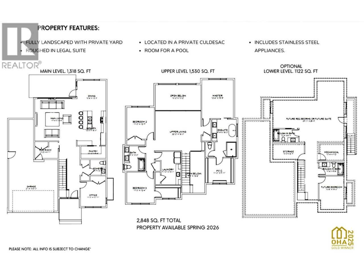
Bedroom:
3
Bathroom:
3
Year Built:
2026
Lot Size:
0.16
Listing Status:
Active
List Price:
$ 1,649,000
Place Nearby
(within radius 1.5 km)
Contact Agent
Download
Print