$ 1,195,900
–
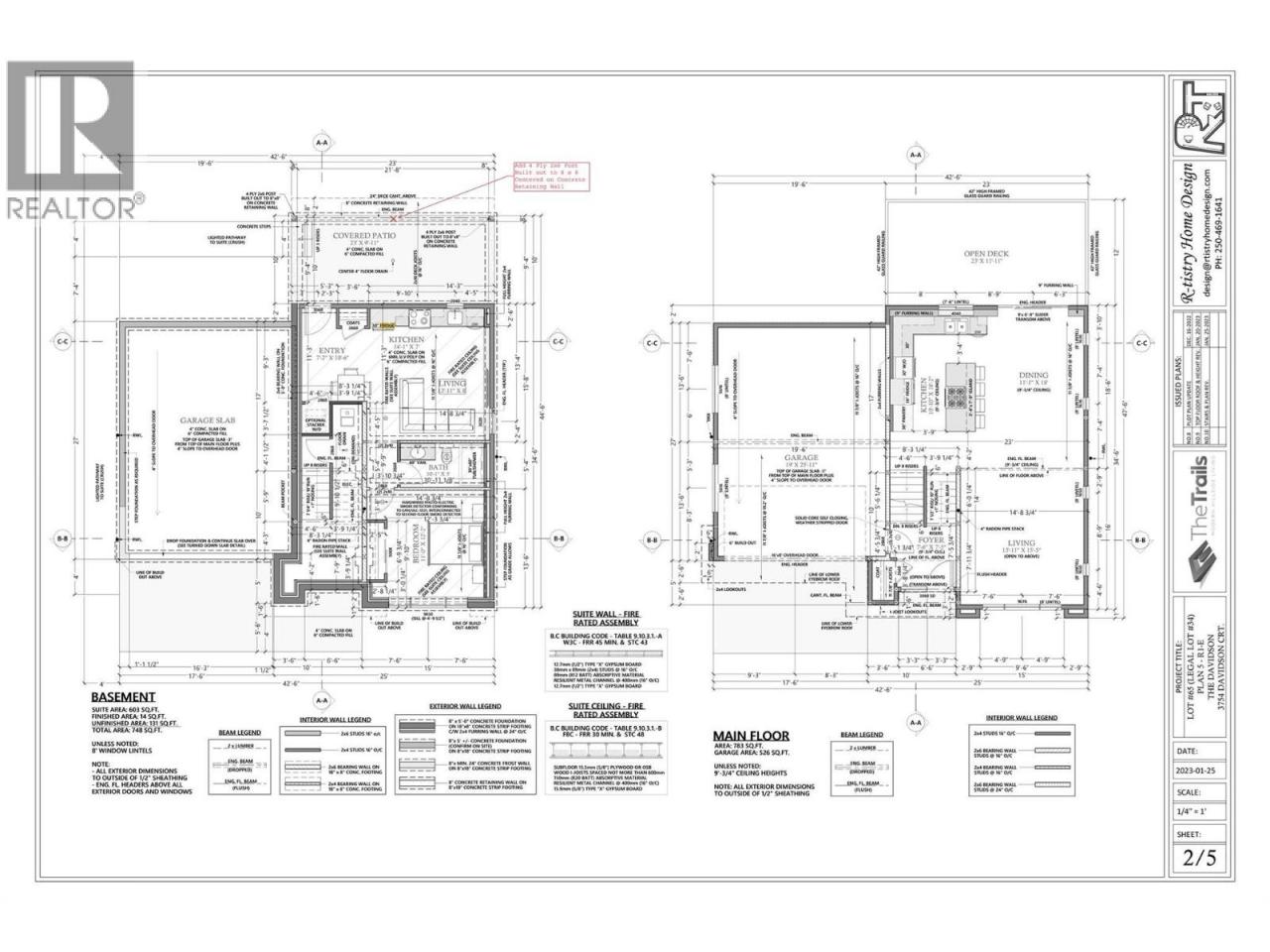
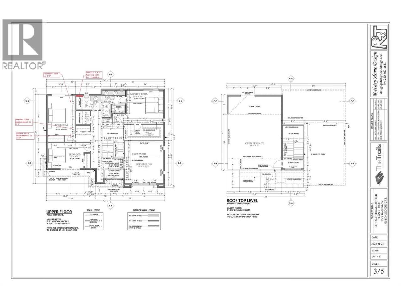
3754 Davidson Court
This listing presented by
Dallas Markovina Personal Real Estate Corporation
. Contact Dallas by phone:
250-870-6145
or email direct
here
.
Overview
Print
Download
Contact Agent
Listing Info
Area:
West Kelowna
Property Type:
Single Family
Ownership:
Freehold
MLS® Number:
10370457
Bedroom:
4
Bathroom:
3
Year Built:
2024
Lot Size:
0.16
Listing Status:
Active
List Price:
$ 1,195,900
Contact Agent
Download
Print