Single Family
Welcome to this beautifully renovated residence on a quiet, no-through road in the highly sought-after Crystal Springs - a 55+ community renowned for its strong management, friendly neighbours and pride of ownership. This is not your average manufactured home - every detail has been thoughtfully upgraded to deliver comfort, style, and peace of mind. This spacious 3-bed, 2-bath residence offers over 1300 sq ft of bright, open living space with a functional layout ideal for downsizing without compromise. The living room features a custom-built wall feature that adds warmth, character, and a polished focal point, complemented by a cozy gas fireplace and modern ceiling fan and recessed lighting. The fully updated kitchen glistens w/ skylights, quartz counters, undermount sink, modern fixtures, high-end appliances (including a smart-stove w/ air-fry), wine fridge, large pantry, and freshly refinished cabinetry. The primary suite has walk-in closet and spa-inspired ensuite w/ body-jet shower. The 2nd bedroom boasts bay windows and and a versatile third bedroom has exterior access. Extensive upgrades include new plumbing, electrical, lighting, interior doors, blinds, vanities, toilets, and LG washer and dryer. Relax outdoors in your sunroom or under the gazebo surrounded by attractive, low-maintenance landscaping including composite stairs, pavers, smart irrigation, power conduit to the shed and LED exterior lighting. One dog or indoor cat allowed (12 lbs. max) and room for the RV! (id:6769)
Subarea
Shannon Lake
Lot
0
Year Built
1997
Sewer
Municipal sewage system
Flooring
Vinyl
Parking Type
2
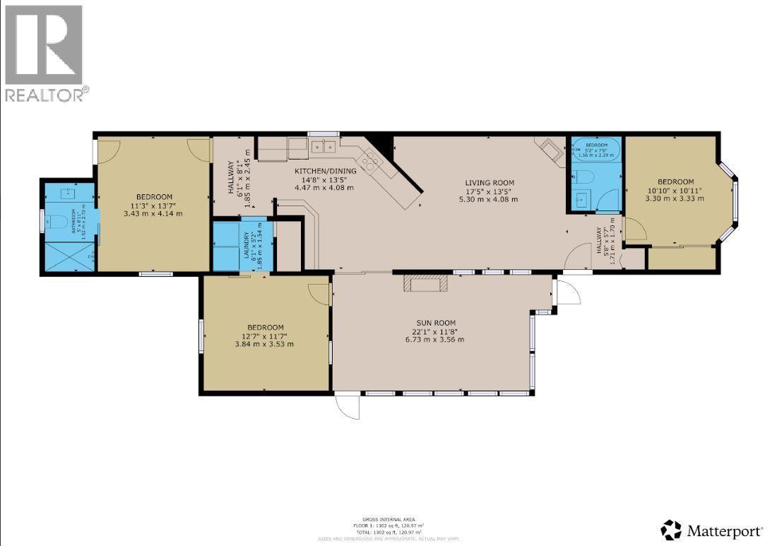
| Room | Floor | Dimension |
|---|---|---|
| Sunroom | Main level | 22'1'' x 11'8'' |
| Dining nook | Main level | 8'1'' x 6'1'' |
| Laundry room | Main level | 6'1'' x 5'2'' |
| Bedroom | Main level | 12'7'' x 11'7'' |
| 4pc Bathroom | Main level | 7'6'' x 5'2'' |
| Bedroom | Main level | 10'11'' x 10'10'' |
| 4pc Ensuite bath | Main level | 8'11'' x 5'0'' |
| Primary Bedroom | Main level | 13'7'' x 11'3'' |
| Kitchen | Main level | 14'8'' x 13'5'' |
| Living room | Main level | 17'5'' x 13'5'' |
Jared Franczak
(250) 300-8530
Royal LePage Kelowna
(250) 768-2161
The property information on this website is derived from the Canadian Real Estate Association''s Data Distribution Facility (DDF®). DDF® references real estate listings held by various brokerage firms and franchisees. The accuracy of information is not guaranteed and should be independently verified. The trademarks REALTOR®, REALTORS® and the REALTOR® logo are controlled by The Canadian Real Estate Association (CREA) and identify real estate professionals who are members of CREA. The trademarks MLS®, Multiple Listing Service® and the associated logos are owned by CREA and identify the quality of services provided by real estate professionals who are members of CREA.
Listing data last updated date: 2026-02-19 02:58:35
