Single Family
Walk to everything from this beautifully maintained one bedroom unit at Sole Rutland. South facing and bright. Large deck with a mountain view stretches your living space. Well designed layout taking advantage of every square foot! Bedroom with barn door and cheater ensuite. Linear kitchen, stacked washer and dryer. One secure, heated parking spot and a handy storage locker and dedicated bike storage. Building is secure and quiet. Common room with ping pong, wet bar and two decks. Why pay rent for your student or as a young professional?! Affordable and worry-free newer building. One pet is welcome with no size restriction! (id:6769)
Subarea
Rutland North
Lot
0
Year Built
2021
Sewer
Municipal sewage system
Flooring
Vinyl
Parking Type
1
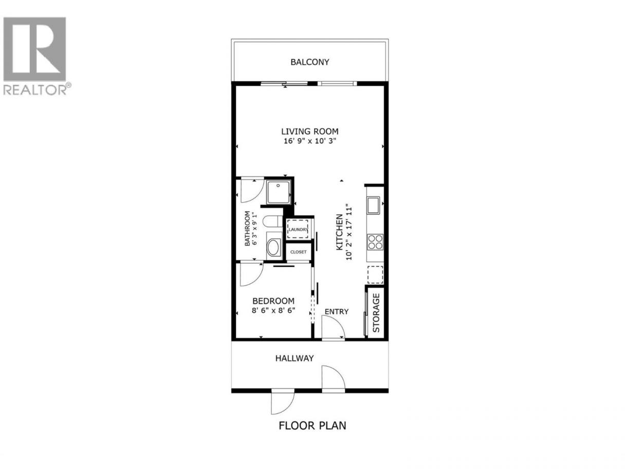
| Room | Floor | Dimension |
|---|---|---|
| Other | Main level | 5'9'' x 6'3'' |
| Full bathroom | Main level | 9'1'' x 6'3'' |
| Primary Bedroom | Main level | 8'6'' x 8'6'' |
| Living room | Main level | 10'3'' x 16'9'' |
| Kitchen | Main level | 17'11'' x 10'2'' |
Maureen Yakimchuk
(250) 870-2510
Sotheby's International Realty Canada
(250) 469-9547
The property information on this website is derived from the Canadian Real Estate Association''s Data Distribution Facility (DDF®). DDF® references real estate listings held by various brokerage firms and franchisees. The accuracy of information is not guaranteed and should be independently verified. The trademarks REALTOR®, REALTORS® and the REALTOR® logo are controlled by The Canadian Real Estate Association (CREA) and identify real estate professionals who are members of CREA. The trademarks MLS®, Multiple Listing Service® and the associated logos are owned by CREA and identify the quality of services provided by real estate professionals who are members of CREA.
Listing data last updated date: 2026-05-05 03:50:24
